Objektbeschreibung
» HIER GEHTS ZUM 360° RUNDGANG « [https://my.matterport.com/show/?m=ZNpzg2EPsed]
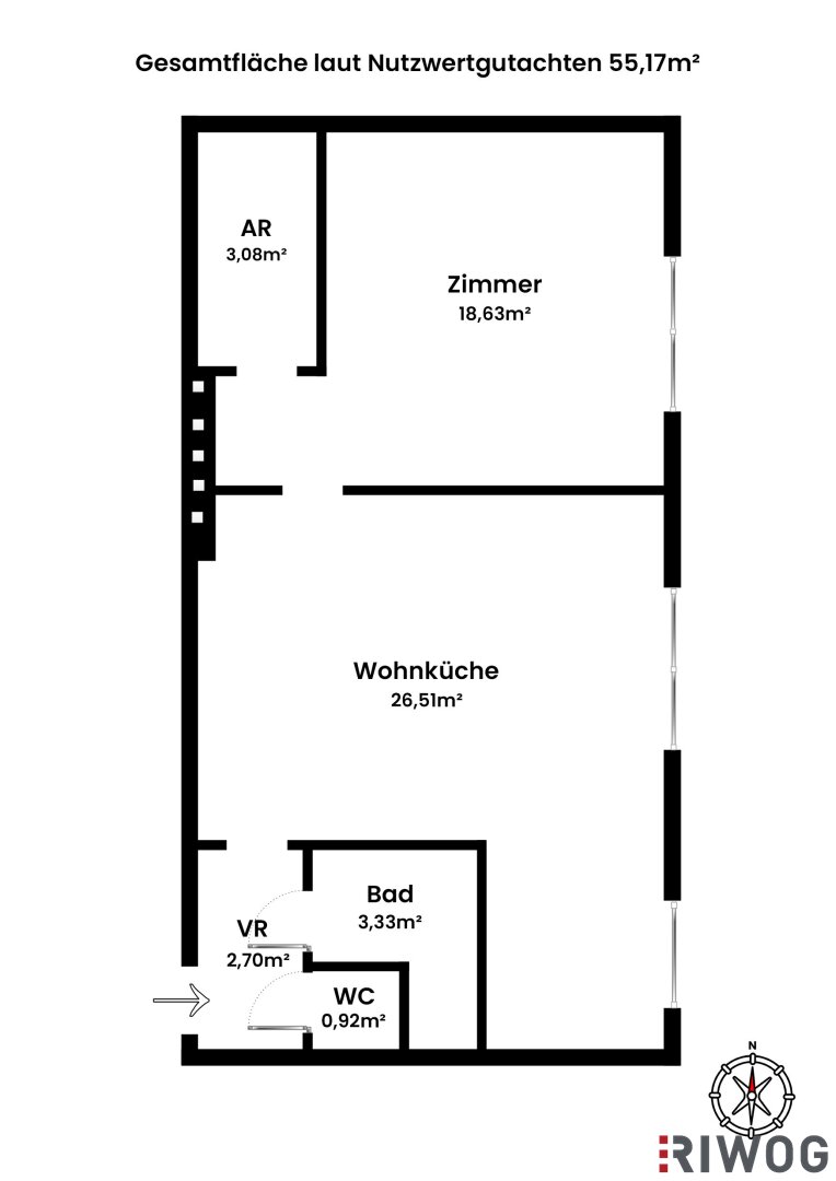
Eine hochwertig sanierte 2-Zimmer-Wohnung mit Blick in den schönen Garten der Pfarrgemeinde steht zum Verkauf. Die großzügige Wohnküche überzeugt durch ihre exzellente Ausstattung und optimale Belichtung. Das Schlafzimmer begeistert mit einem begehbaren Kleiderschrank bzw. Abstellraum. Das 3,5 m² große Kellerabteil bietet
Mehr lesen
Objekt ID: 2164071
Preis: € 299.000
Nutzfläche: 55 m2
Gesamtfläche: 55 m2
Ziimmer insgesamt: 2
Schlafzimmer: 2
Badezimmer: 1
Miete/m2 €: 5419.61
Nutzungsart: Wohnen
Provisionspflichtig: ja
Provision: 10.764,00 € inkl. 20% USt.
HWB: 136,40 kWh/(m²*a)
HWB Klasse: D
FGEE: 2.29
E-Ausweis Gültig Bis:: 16.02.2033
Energieausweis Art: Bedarf
Balkon/Terrassen - Fläche: 10
Beziehbar: sofort
Etage: 2. Etage / Kein Lift
WC: 1
Abstellräume: 1
Neubau
Einbauküche
Dusche
Kabel/Sat-TV
Fahrradraum
offene Küche
Abstellraum
Offene Küche
Elektro
Fertigparkett
Ähnliche Objekte
Ein smartes Investment | Vermieten neu gedac...
€ 167.669
2
Schlafzimmer
1
Badezimmer
30 m2
Größe
November 8, 2025






