Objektbeschreibung
Um 1900 vom renommierten Wiener Architekten Alois Koch für die Obsthändlerfamilie Hüber erbaut, trägt das klassische Biedermeierhaus im 11. Bezirk die Handschrift einer Zeit, in der auf echtes Handwerk, bleibende Qualität und zeitlose Bauweise Wert gelegt wurde.
Ruhig gelegen, zwischen einem gepflegten Garten und einem begrünten Innenhof, befindet sich
Mehr lesen
Objekt ID: 2322636
Preis: € 950.000
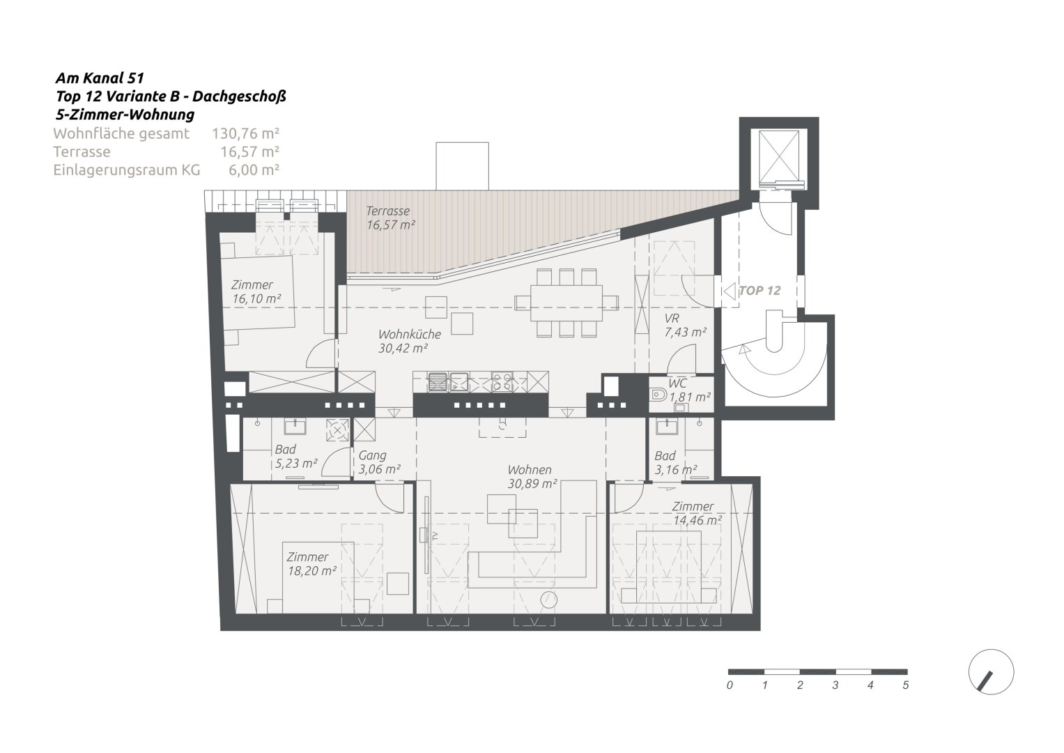
Nutzfläche: 131 m2
Gesamtfläche: 890 m2
Ziimmer insgesamt: 5
Schlafzimmer: 5
Badezimmer: 2
Nutzungsart: Wohnen
Provisionspflichtig: ja
Provision: 3% des Kaufpreises zzgl. 20% USt.
Balkon/Terrassen - Fläche: 16
Beziehbar: 2026
Etage: 1. DG
WC: 2
Abstellräume: 1
barrierefrei
Neubau
Personenaufzug
Gäste-WC
Bad mit Fenster
Fußbodenheizung
Fahrradraum
Abstellraum
rollstuhlgerecht
Luft-Wärmepumpe
vollerschlossen
Dielen
Gartennutzung
Alarmanlage
Ähnliche Objekte
***2-Zimmer-Altbauwohnung in Ruhelage mit gu...
€ 199.900
2
Schlafzimmer
1
Badezimmer
54 m2
Größe
März 19, 2026
***2,5-Zimmer Altbauwohnung mit Loggia &...
€ 299.900
2
Schlafzimmer
1
Badezimmer
53 m2
Größe
März 19, 2026
***Sanierungsbedürftige 2,5 Zimmer-Wohnung n...
€ 214.000
2
Schlafzimmer
1
Badezimmer
60 m2
Größe
März 19, 2026




















