Objektbeschreibung
_MODERNE GESCHÄFTSRÄUMLICHKEIT MIT IDEALER VERKEHRSANBINDUNG IM „GEWERBEZENTRUM“ REGAU ZU VERMIETEN!_
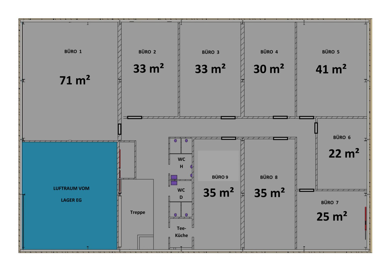
Die 33m2 große Bürofläche befindet sich in der 1. Etage eines Bürogebäudes im „Gewerbezentrum“ Regau und ist barrierefrei zugänglich.
Das Objekt besteht aus einem großzügigen & lichtdurchfluteten Büroraum.
Highlights
*Perfekte Verkehrsanbindung
*Nahversorger weniger als 50 Meter entfernt
Mehr lesen
Objekt ID: 2323835
Nutzfläche: 0 m2
Gesamtfläche: 0 m2
Ziimmer insgesamt: 0
Schlafzimmer: 0
Badezimmer: 2
Miete/m2 €: 11
Miete (netto) €: 363
USt €: 97.68
Nutzungsart: Gewerbe
Provisionspflichtig: ja
Kaution: 3 Bruttomonatsmieten
HWB: 41 kWh/(m²*a)
HWB Klasse: B
FGEE: 0.59
E-Ausweis Gültig Bis:: 12.01.2032
Energieausweis Art: Bedarf
Beziehbar: sofort
Etage: 1. Etage
WC: 2
Neubau
Gäste-WC
Fußbodenheizung
Abstellraum
Teppich
Freiplatz
Wasch-/Trockenraum
Fernwärme
Pissoir
Teeküche
Flachdach
Fertigteile
Fertigteil-Bauweise






