Objektbeschreibung
Alle Details zum Projekt finden Sie auch unter: www.paulus5.at [https://www.paulus5.at]
STILVOLLE ALTBAU-ELEGANZ TRIFFT MODERNEN WOHNKOMFORT
Im Zuge einer umfassenden Revitalisierung des historischen Bestandsgebäudes wird das Dachgeschoss zu insgesamt sieben exklusiven Dachgeschosswohnungen auf höchstem Niveau ausgebaut. Traditionelle Architektur verbindet sich hier mit zeitgemäßer Technik und anspruchsvoller Wohnqualität.
HOCHWERTIG & KLIMAEFFIZIENT
Die
Mehr lesen
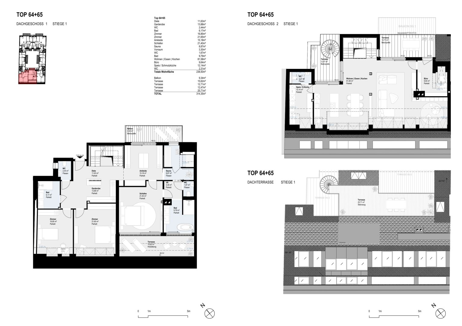
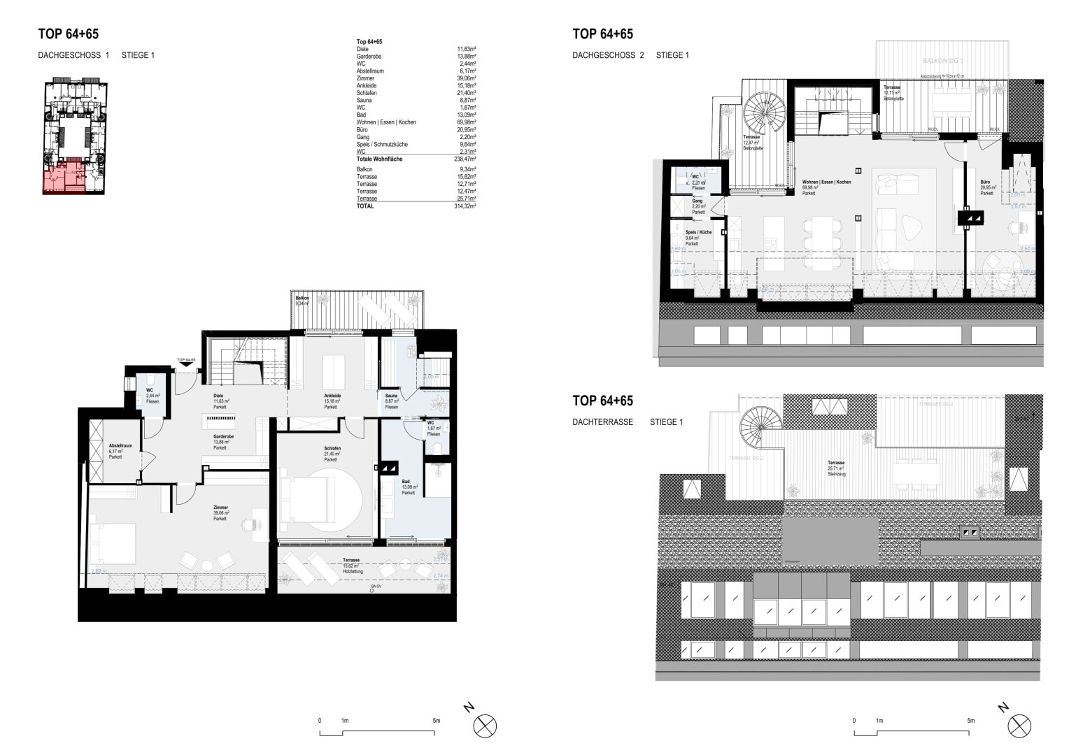
Objekt ID: 2366521
Preis: € 2.249.000
Nutzfläche: 238 m2
Gesamtfläche: 314 m2
Ziimmer insgesamt: 5
Schlafzimmer: 5
Badezimmer: 2
Nutzungsart: Wohnen
Provisionspflichtig: ja
Provision: 3% des Kaufpreises zzgl. 20% USt.
HWB: 43,80 kWh/(m²*a)
HWB Klasse: B
FGEE: 0.65
E-Ausweis Gültig Bis:: 25.07.2032
Energieausweis Art: Bedarf
Anzahl Balkone: 1
Balkon/Terrassen - Fläche: 75
Beziehbar: 01.12.2026
Etage: 2. DG
WC: 3
Abstellräume: 3
Balkon
Neubau
Personenaufzug
Gäste-WC
Parkett
Bad mit Fenster
Fußbodenheizung
Fahrradraum
Abstellraum
Rollläden
Klimaanlage
Luft-Wärmepumpe
Sauna
Ähnliche Objekte
Nähe U1, Laubeplatz und Quellenstraße *** Ga...
€ 115.000
1
Schlafzimmer
1
Badezimmer
27 m2
Größe
Dezember 18, 2025
Südwestseitige Altbauwohnung mit baubewillig...
€ 189.000
2
Schlafzimmer
1
Badezimmer
50 m2
Größe
Dezember 18, 2025







