Objektbeschreibung
Alle Details zum Projekt finden Sie auch unter: www.paulus5.at [https://www.paulus5.at]
Stilvolle Altbau-Eleganz trifft modernen Wohnkomfort
Im Zuge einer umfassenden Sanierung des Altbaus wird das Dachgeschoss mit insgesamt sieben exklusiven Dachgeschosswohnungen ausgebaut.
Hochwertig & klimaeffizient
Das Gebäude befindet sich derzeit in der Sanierungsphase und wird hochwertig modernisiert sowie schlüsselfertig übergeben. Neben
Mehr lesen
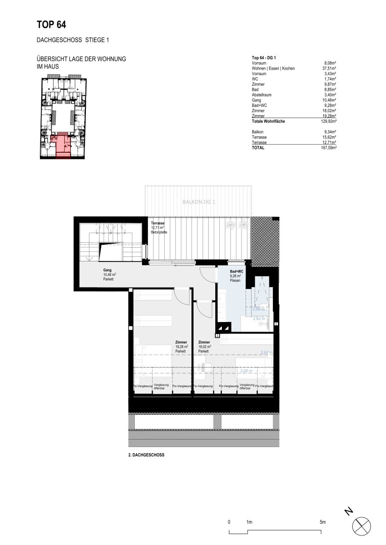
Objekt ID: 2366549
Preis: € 1.229.000
Nutzfläche: 130 m2
Gesamtfläche: 168 m2
Ziimmer insgesamt: 4
Schlafzimmer: 4
Badezimmer: 2
Nutzungsart: Wohnen
Provisionspflichtig: ja
Provision: 3% des Kaufpreises zzgl. 20% USt.
HWB: 43,80 kWh/(m²*a)
HWB Klasse: B
FGEE: 0.65
E-Ausweis Gültig Bis:: 25.07.2032
Energieausweis Art: Bedarf
Anzahl Balkone: 1
Balkon/Terrassen - Fläche: 37
Beziehbar: 01.12.2026
Etage: 2. DG
WC: 2
Abstellräume: 1
Balkon
Neubau
Personenaufzug
Parkett
Dusche
Fußbodenheizung
Klimaanlage
Luft-Wärmepumpe







