Objektbeschreibung
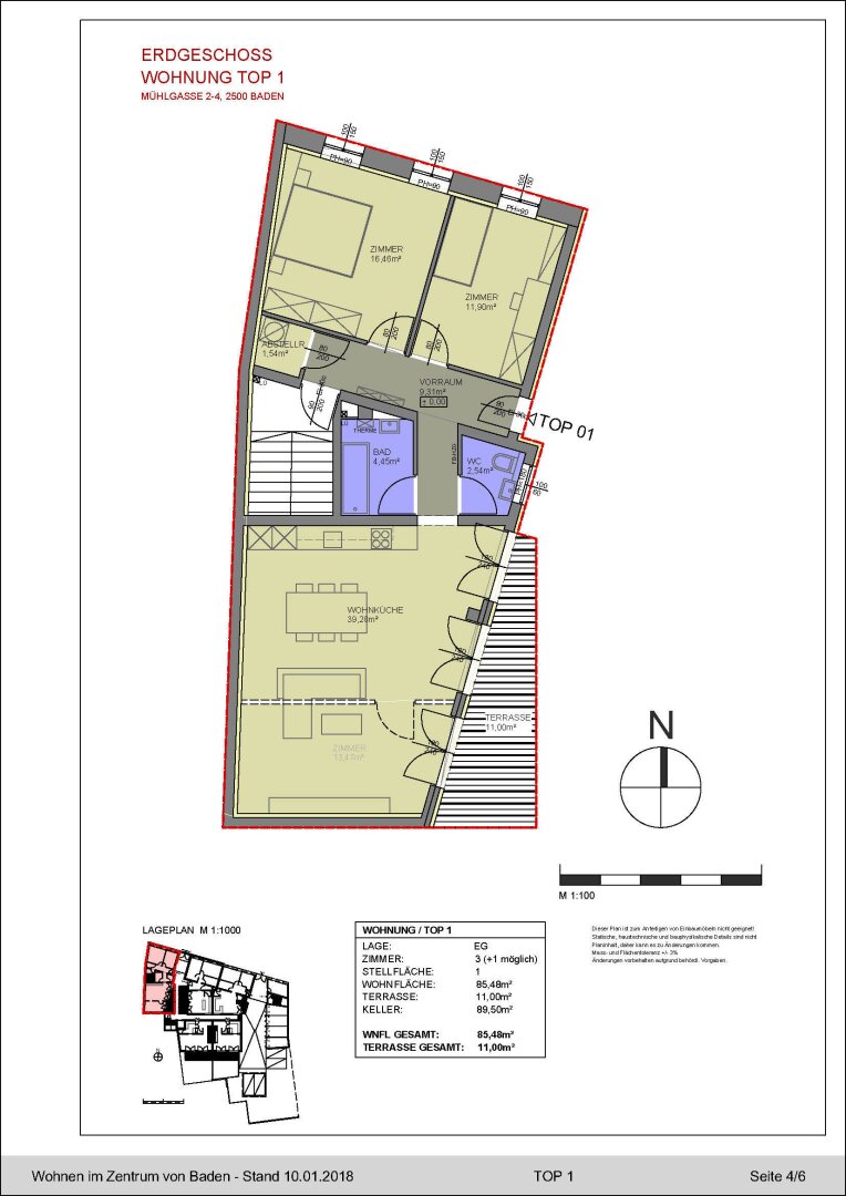
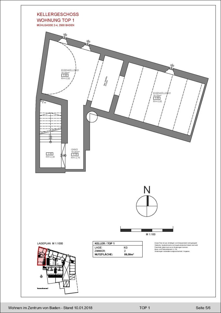
Nahe dem Zentrum wurde mit Bedacht auf „Altes“ ein modernes Wohnhaus errichtet, in dem sich im Erdgeschoss diese Wohnung mit dem einzigartigen, 90m² messenden „Weinkeller“ befindet.
Barrierefrei über den Hauseingang erreicht man die ca. 86m² große, perfekt aufgeteilte Wohnung, die im revitalisiertem Altbaubereich mit 2 Zimmer, einem Wohnraum mit offen
Mehr lesen
Objekt ID: 2600806
Preis: € 340.000
Nutzfläche: 86 m2
Gesamtfläche: 97 m2
Ziimmer insgesamt: 3
Schlafzimmer: 3
Badezimmer: 1
Nutzungsart: Wohnen
Provisionspflichtig: ja
Provision: 12.780,00 € inkl. 20% USt.
HWB: 47,88 kWh/(m²*a)
HWB Klasse: B
FGEE: 0.67
E-Ausweis Gültig Bis:: 06.04.2026
Energieausweis Art: Bedarf
Balkon/Terrassen - Fläche: 11
Beziehbar: sofort
Etage: EG
WC: 1
Abstellräume: 1
barrierefrei
Gäste-WC
Altbau
Etagenheizung
Gas
Badewanne
Kabel/Sat-TV
offene Küche
Abstellraum
Offene Küche
Laminat
Garage
Ähnliche Objekte
Villenetage in Bestlage – Individuell ...
€ 875.000
5
Schlafzimmer
1
Badezimmer
187 m2
Größe
Januar 25, 2026
Neu saniert: Traum-Ruhelage: 2-Zimmer-Wohnun...
€ 239.000
2
Schlafzimmer
1
Badezimmer
56 m2
Größe
Januar 24, 2026
Aussicht – 3 Zimmer Wohnung mit Loggia...
€ 198.000
3
Schlafzimmer
1
Badezimmer
61 m2
Größe
Januar 22, 2026







