Erweiterte Suche
Suchagent aktivieren
Exklusive Anzeigen

Jadranovo – Villa mit Pool

€ 540.000,00

,

3 Zimmer
zu Favoriten hinzufügen
teilen
Suchergebnisse

Objektbeschreibung

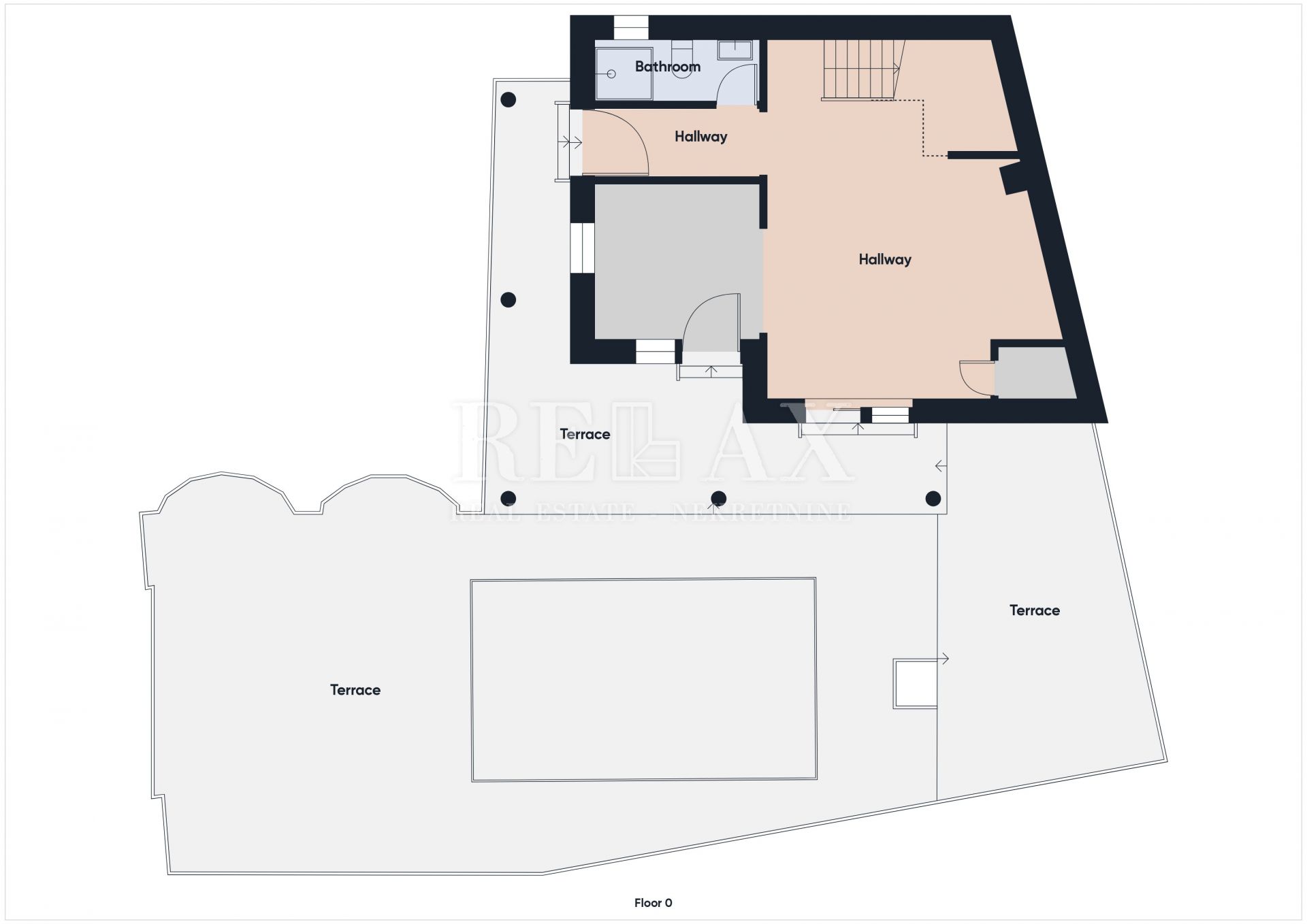
In der ruhigen Umgebung von Jadranovo, am Ende einer Sackgasse, befindet sich diese wunderschöne Doppelhaushälfte mit Pool und Meerblick. Diese Neubauimmobilie aus dem Jahr 2024 bietet 95 m² Wohnfläche, verteilt auf zwei Etagen, sowie ein großzügiges Grundstück von 250 m², das Privatsphäre und Komfort bietet.

Im Erdgeschoss befinden sich ein
Mehr lesen

Bezirk:
PLZ: 51260
Land: Croatia
Objekt ID: 1003154
Preis: € 540.000
Nutzfläche: 0 m2
Gesamtfläche: 250 m2
Ziimmer insgesamt: 3
Schlafzimmer: 3
Badezimmer: 2
Nutzungsart: Wohnen
Provisionspflichtig: ja
WC: 1

Ähnliche Objekte

vergleichen
1569937485 img 3813

Häuser Crikvenica, 360m2

€ 105.000
3
Schlafzimmer
1
Badezimmer
vergleichen
1578592562 a

Häuser Crikvenica, 125m2

€ 467.000
4
Schlafzimmer
3
Badezimmer
vergleichen
1582112051 img 1169

Häuser Crikvenica, 168m2

€ 260.000
6
Schlafzimmer


Domagoj Margeta

Kontaktaufnahme









    • Preisinformation
      Objektpreis540.000,00 €

    Vergleichen