Objektbeschreibung
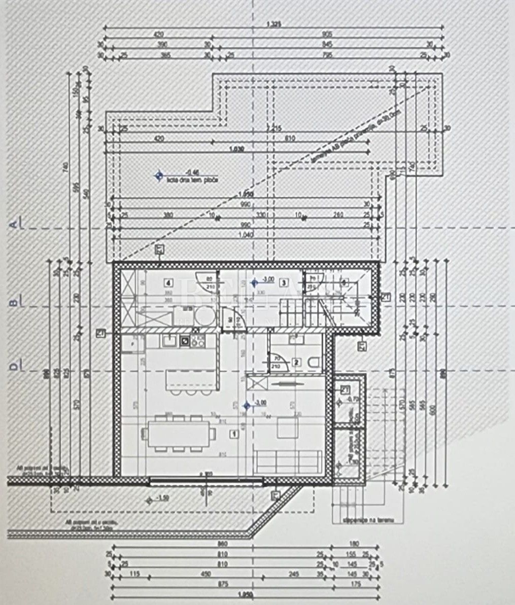
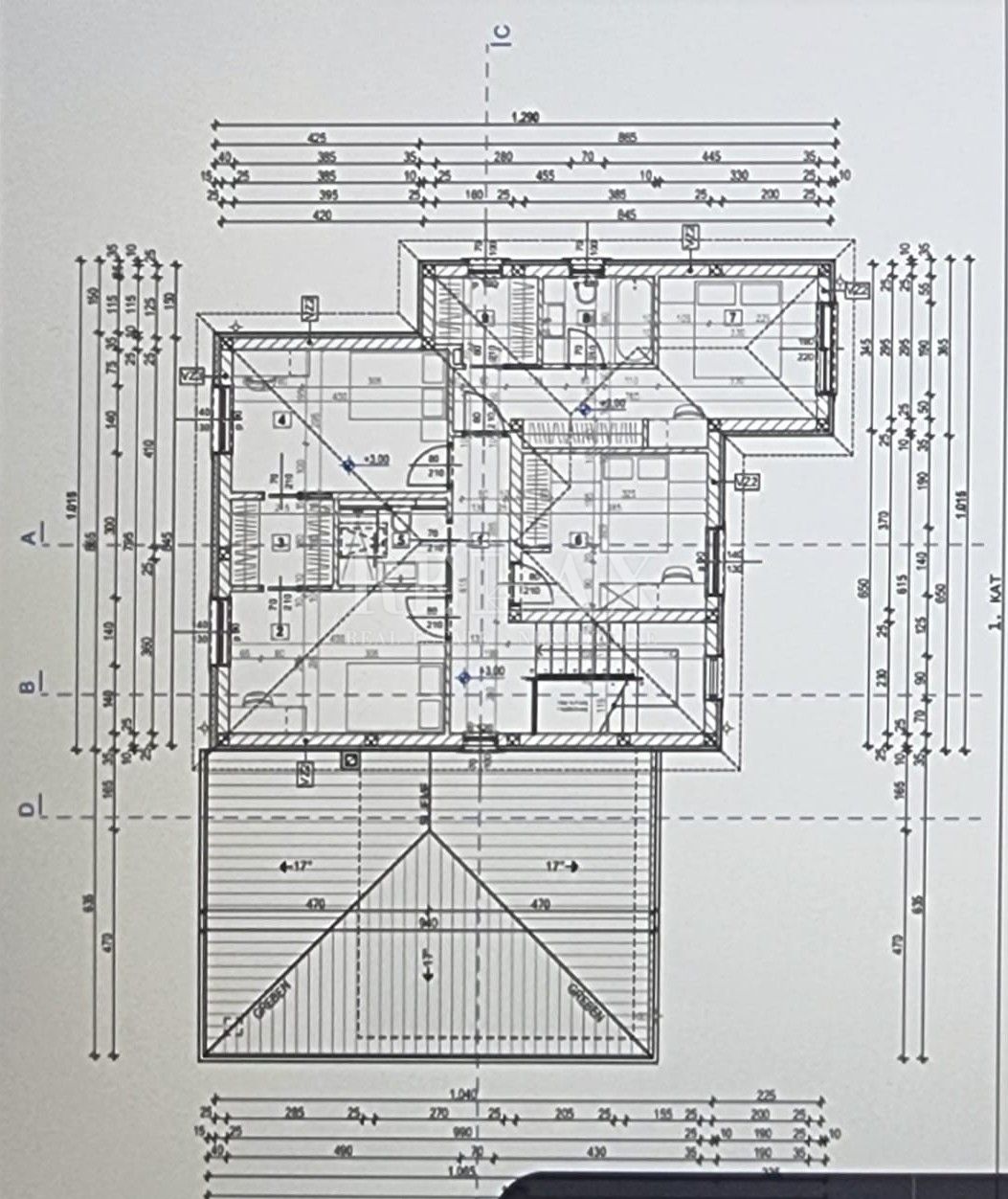
Zum Verkauf steht ein Baugrundstück mit Projekt, das sich an einem der begehrtesten Standorte in Rijeka, in Trsat, befindet.
Solche Immobilien werden auf dem Markt immer seltener.
Das Grundstück hat eine Fläche von 658 m2 und eignet sich je nach Bedarf ideal für den Bau eines Wohnhauses oder eines Einfamilienhauses
Mehr lesen
Objekt ID: 1003378
Preis: € 225.000
Nutzfläche: 0 m2
Gesamtfläche: 0 m2
Ziimmer insgesamt: 0
Schlafzimmer: 0
Badezimmer: 0
Nutzungsart: Anlage
Provisionspflichtig: ja














