Objektbeschreibung
365 TAGE URLAUB – MODERNES HAUS MIT EIGENEM SEEZUGANG
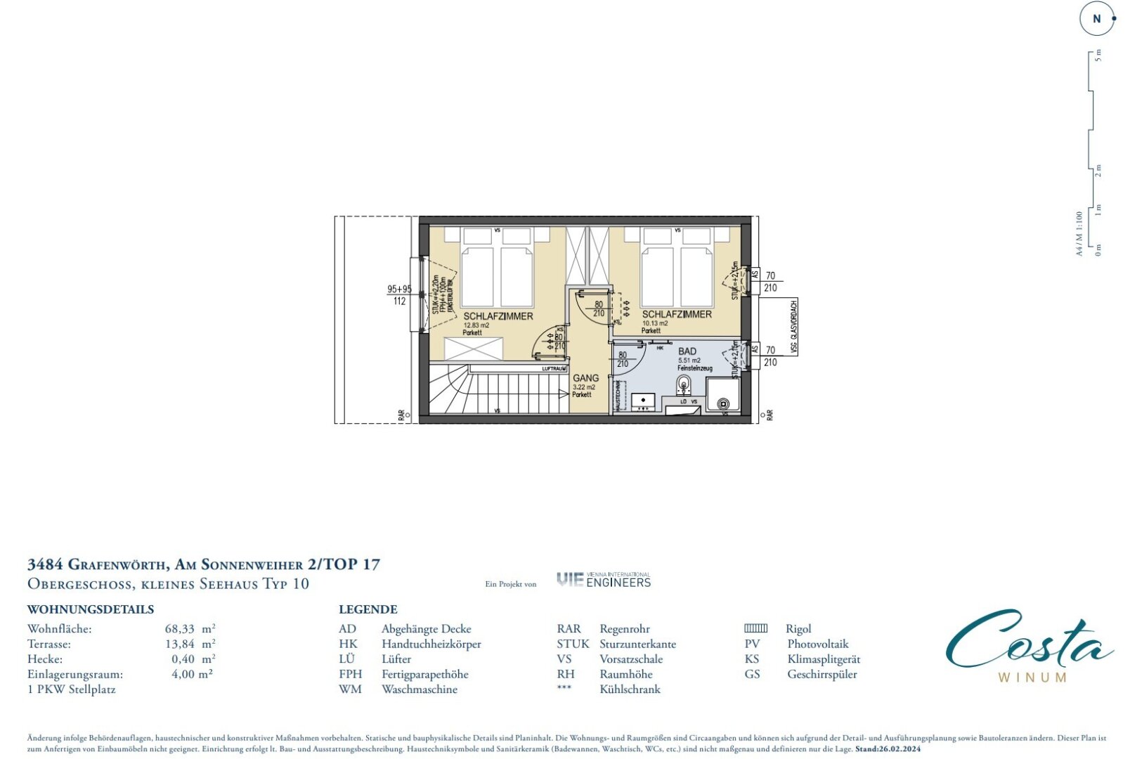
PROVISIONSFREI – 30 MINUTEN VON WIEN ENTFERNT
CostaWINUM ist ein einzigartiges Wohnprojekt zwischen Wachau und Wien nahe dem Schloss Grafenegg, das Wohlbefinden und Entspannung bietet. Die charmanten 36 kleinen Seehäuser mit jeweils drei Zimmern verfügen über eine hochwertige Ausstattung, eigene Terrassen und direkten Zugang zu
Mehr lesen
Objekt ID: 101856
Preis: € 329.000
Nutzfläche: 68 m2
Gesamtfläche: 0 m2
Ziimmer insgesamt: 3
Schlafzimmer: 3
Badezimmer: 1
Nutzungsart: Wohnen
Provisionspflichtig: nein
Provision: Provision bezahlt der Abgeber.
HWB: 32,10 kWh/(m²*a)
HWB Klasse: B
FGEE: 0.68
E-Ausweis Gültig Bis:: 31.08.2033
Energieausweis Art: Bedarf
Balkon/Terrassen - Fläche: 13
Beziehbar: ab sofort
WC: 2
Abstellräume: 1
Neubau
Gäste-WC
Parkett
Bad mit Fenster
offene Küche
Abstellraum
Offene Küche
Klimaanlage
Freiplatz
vollerschlossen
Gartennutzung
Flachdach
Solar










