Objektbeschreibung
Die Wohnung D2 befindet sich im dritten Stock eines modernen Wohngebäudes und überzeugt durch einen funktionalen Grundriss sowie großzügige Außenflächen. Netto-Wohnfläche: 123,13 m².
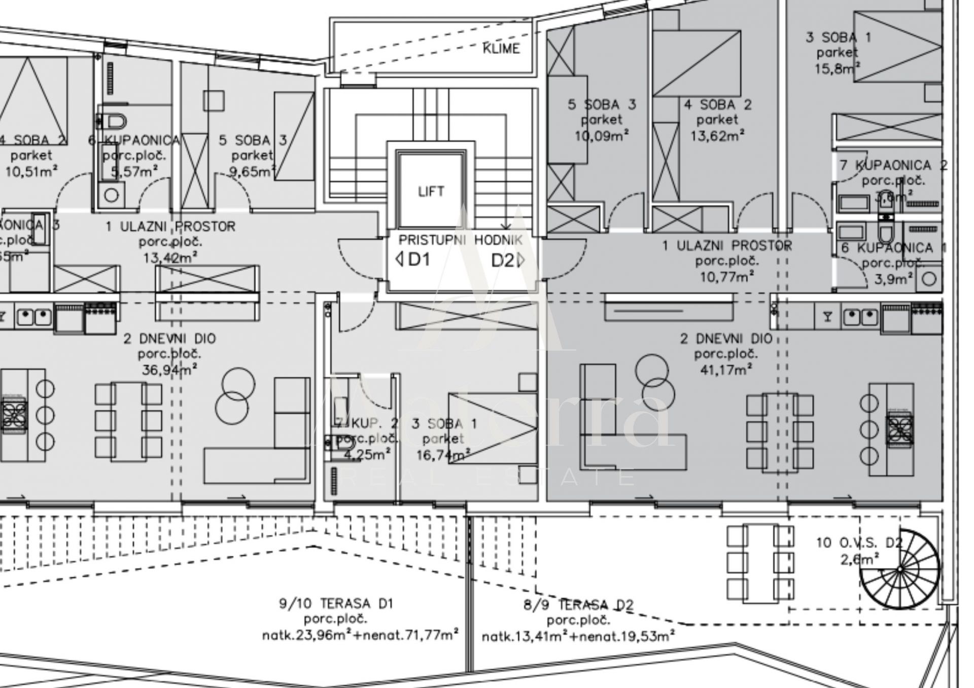
Grundriss und Raumaufteilung:
Eingangsbereich – 10,77 m²
Schlafzimmer 1 – 15,80 m²
Schlafzimmer 2 – 13,62 m²
Schlafzimmer 3 – 10,09 m²
Badezimmer 1 – 3,90 m²
Mehr lesen
Objekt ID: 1024923
Preis: € 670.000
Nutzfläche: 0 m2
Gesamtfläche: 0 m2
Ziimmer insgesamt: 5
Schlafzimmer: 5
Badezimmer: 2
Nutzungsart: Wohnen
Provisionspflichtig: ja
















