Objektbeschreibung
Wohnung A2 befindet sich im Erdgeschoss eines modernen Wohngebäudes und zeichnet sich durch eine funktionale Raumaufteilung sowie großzügige Außenflächen aus. Nettowohnfläche: 69,51 m².
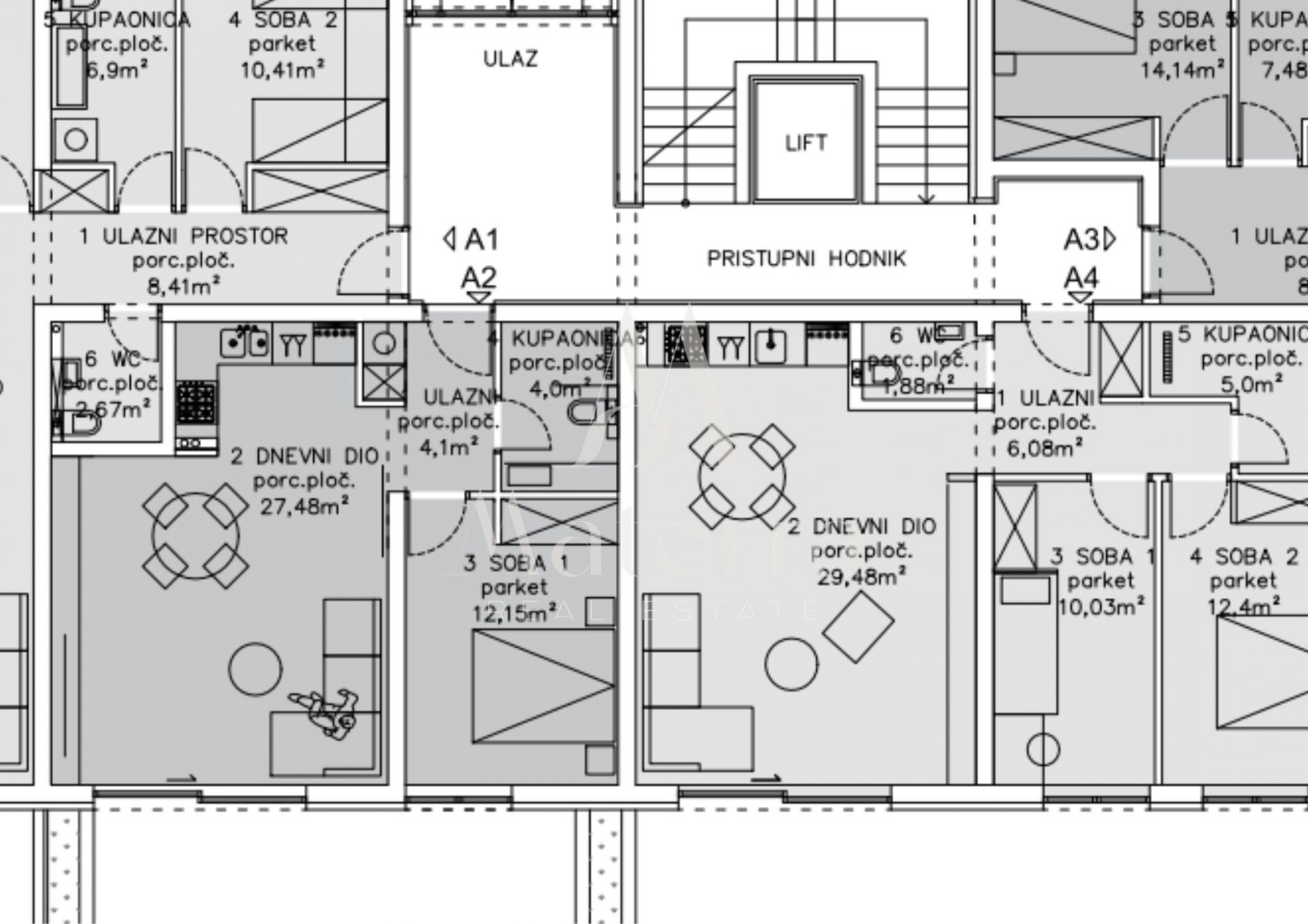
Grundriss und Raumaufteilung:
Eingangsbereich – 4,10 m²
Schlafzimmer – 12,15 m²
Badezimmer – 4,00 m²
Wohnzimmer mit Küche und Essbereich – 27,25 m²
Überdachte Terrasse – 18,37
Mehr lesen
Objekt ID: 1024991
Preis: € 265.000
Nutzfläche: 0 m2
Gesamtfläche: 0 m2
Ziimmer insgesamt: 2
Schlafzimmer: 2
Badezimmer: 1
Nutzungsart: Wohnen
Provisionspflichtig: ja
















