Objektbeschreibung
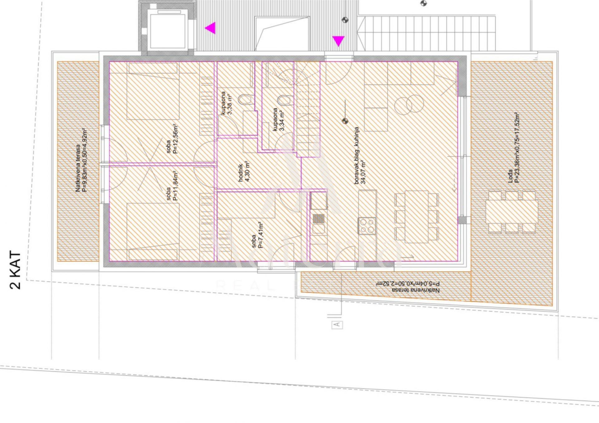
Ein neues Projekt moderner, hochwertiger Bauweise steht zum Verkauf in ausgezeichneter Lage in Zadar, im weiteren Bereich von Diklo, nur 450 m vom Meer und gepflegten Stränden entfernt. Das Mehrfamilienhaus befindet sich derzeit in der Anfangsphase des Baus und besteht aus insgesamt 6 luxuriösen Dreizimmerwohnungen, verteilt auf vier Etagen: Untergeschoss,
Mehr lesen
Objekt ID: 1025398
Preis: € 581.100
Nutzfläche: 0 m2
Gesamtfläche: 0 m2
Ziimmer insgesamt: 4
Schlafzimmer: 4
Badezimmer: 2
Nutzungsart: Wohnen
Provisionspflichtig: ja




















