Objektbeschreibung
CHARMANTES INVESTMENT – FREIFLÄCHE – LUFTWÄRMEPUMPE – KELLER – GARAGE – U1!
Tauchen Sie ein in die exklusive Welt dieses herausragenden Projekts im begehrten 22. Bezirk! Hier wird Wohnen zu einem einzigartigen Erlebnis. Die besondere Lage dieses Neubaus setzt neue Maßstäbe für urbanes Wohnen und bietet nicht nur ein Zuhause,
Mehr lesen
Objekt ID: 1052362
Preis: € 406.075
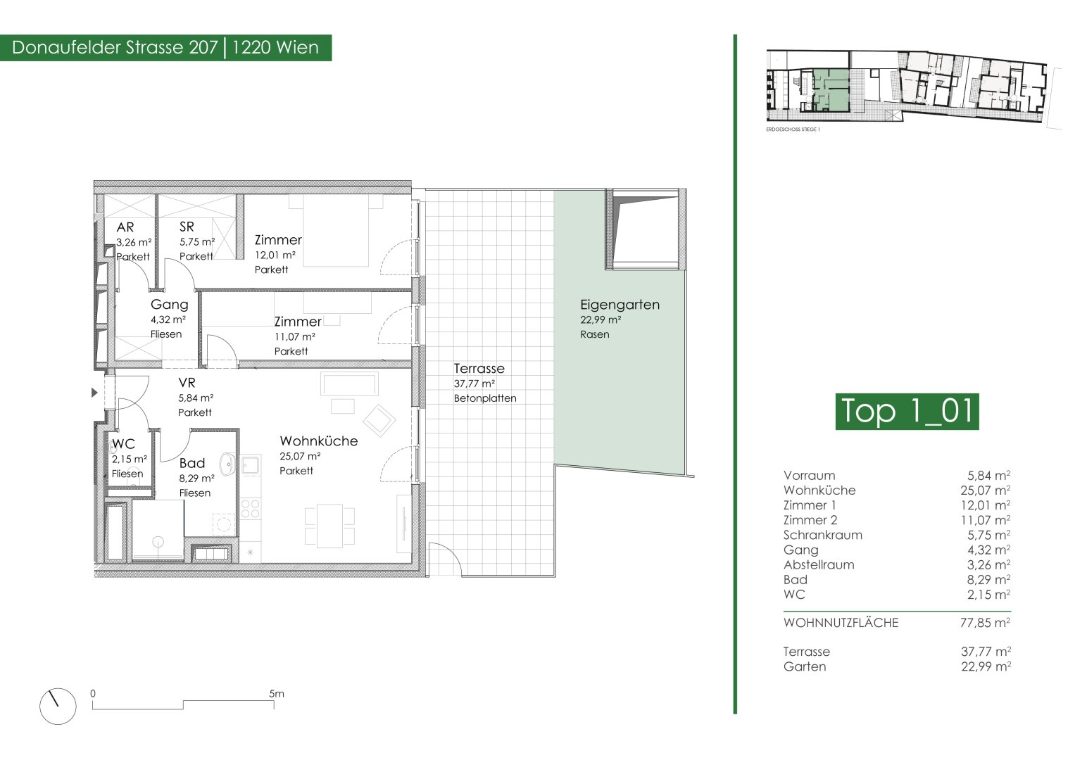
Nutzfläche: 78 m2
Gesamtfläche: 139 m2
Ziimmer insgesamt: 3
Schlafzimmer: 3
Badezimmer: 1
Nutzungsart: Wohnen
Provisionspflichtig: ja
Provision: 3% des Kaufpreises zzgl. 20% USt.
HWB: 23,90 kWh/(m²*a)
HWB Klasse: B
FGEE: 0.76
E-Ausweis Gültig Bis:: 26.04.2030
Energieausweis Art: Bedarf
Balkon/Terrassen - Fläche: 37
Beziehbar: sofort
Etage: EG / EG
WC: 1
barrierefrei
Neubau
Personenaufzug
Parkett
Dusche
Fußbodenheizung
Fahrradraum
offene Küche
Offene Küche
Rollläden
Garage
Klimaanlage





















