Objektbeschreibung
CHARMANTES INVESTMENT – FREIFLÄCHE – LUFTWÄRMEPUMPE – KELLER – GARAGE – U1!
Tauchen Sie ein in die exklusive Welt dieses herausragenden Projekts im begehrten 22. Bezirk! Hier wird Wohnen zu einem einzigartigen Erlebnis. Die besondere Lage dieses Neubaus setzt neue Maßstäbe für urbanes Wohnen und bietet nicht nur ein Zuhause,
Mehr lesen
Objekt ID: 1052696
Preis: € 329.000
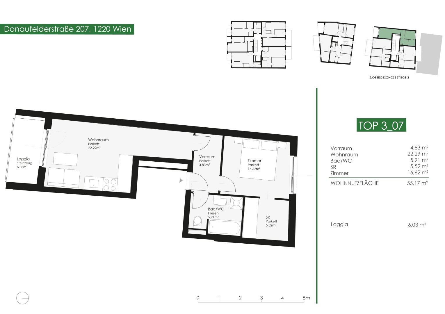
Nutzfläche: 55 m2
Gesamtfläche: 61 m2
Ziimmer insgesamt: 2
Schlafzimmer: 2
Badezimmer: 1
Nutzungsart: Wohnen
Provisionspflichtig: ja
Provision: 3% des Kaufpreises zzgl. 20% USt.
HWB: 23,90 kWh/(m²*a)
HWB Klasse: A
FGEE: 0.76
E-Ausweis Gültig Bis:: 26.04.2030
Energieausweis Art: Bedarf
Balkon/Terrassen - Fläche: 6
Beziehbar: sofort
Etage: 2. Etage / 2. Obergeschoss
WC: 1
barrierefrei
Neubau
Personenaufzug
Parkett
Dusche
Fußbodenheizung
Fahrradraum
offene Küche
Offene Küche
Rollläden
Garage
Ähnliche Objekte
Familienwohntraum mit Weitblick zum Bisamber...
€ 398.900
3
Schlafzimmer
1
Badezimmer
75 m2
Größe
April 19, 2026
Charmante Dachgeschosswohnung mit Terrasse i...
€ 549.000
3
Schlafzimmer
1
Badezimmer
95 m2
Größe
April 19, 2026















