Objektbeschreibung
CHARMANTES INVESTMENT – FREIFLÄCHE – LUFTWÄRMEPUMPE – KELLER – GARAGE – U1!
Tauchen Sie ein in die exklusive Welt dieses herausragenden Projekts im begehrten 22. Bezirk! Hier wird Wohnen zu einem einzigartigen Erlebnis. Die besondere Lage dieses Neubaus setzt neue Maßstäbe für urbanes Wohnen und bietet nicht nur ein Zuhause,
Mehr lesen
Objekt ID: 1053548
Preis: € 499.900
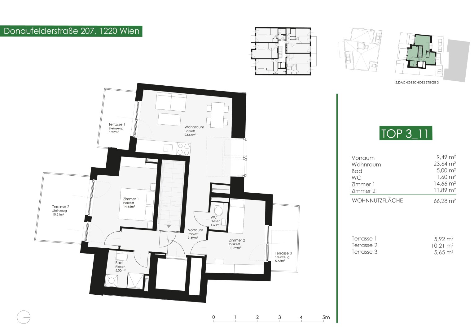
Nutzfläche: 66 m2
Gesamtfläche: 88 m2
Ziimmer insgesamt: 3
Schlafzimmer: 3
Badezimmer: 1
Nutzungsart: Wohnen
Provisionspflichtig: ja
Provision: 3% des Kaufpreises zzgl. 20% USt.
HWB: 23,90 kWh/(m²*a)
HWB Klasse: A
FGEE: 0.76
E-Ausweis Gültig Bis:: 26.04.2030
Energieausweis Art: Bedarf
Balkon/Terrassen - Fläche: 21
Beziehbar: sofort
Etage: 2. DG / 2. Dachgeschoss
WC: 1
barrierefrei
Neubau
Personenaufzug
Parkett
Dusche
Fußbodenheizung
Fahrradraum
offene Küche
Offene Küche
Rollläden
Garage
Klimaanlage
Ähnliche Objekte
PROVISIONSFREI | Top Raumaufteilung | 3,5 Zi...
€ 265.000
3
Schlafzimmer
1
Badezimmer
63 m2
Größe
März 1, 2026
Gartenwohnung Nähe Gersthofer Straße I Erstb...
€ 711.000
3
Schlafzimmer
2
Badezimmer
85 m2
Größe
März 1, 2026
TOP-LAGE! TRAUMHAFTE MAISONETTE-WOHNUNG MIT ...
€ 439.000
4
Schlafzimmer
1
Badezimmer
95 m2
Größe
März 1, 2026


![Gartenwohnung Nähe Gersthofer Straße I Erstbezug [A] 5CQVoTEbsptoQTHyXBAABm](https://gesucht-gefunden.at/wp-content/uploadstorage/2026/02/5CQVoTEbsptoQTHyXBAABm-525x350.jpg)


















