Objektbeschreibung
Lage
Die FABRIK Lustenau liegt an der Rheinstraße 27 im Ortsteil Rheindorf, einer angenehm ruhigen und gleichzeitig hervorragend erreichbaren Lage. In direkter Umgebung befinden sich Bushaltestellen, Einkaufsmöglichkeiten, Gastronomie, der Bahnhof „Lustenau Markt“ sowie diverse Dienstleister. Auch die Anbindung an die Schweiz und die Rheintalautobahn ist ideal.
Das architektonisch markante
Mehr lesen
Objekt ID: 1059281
Preis: € 1.686.000
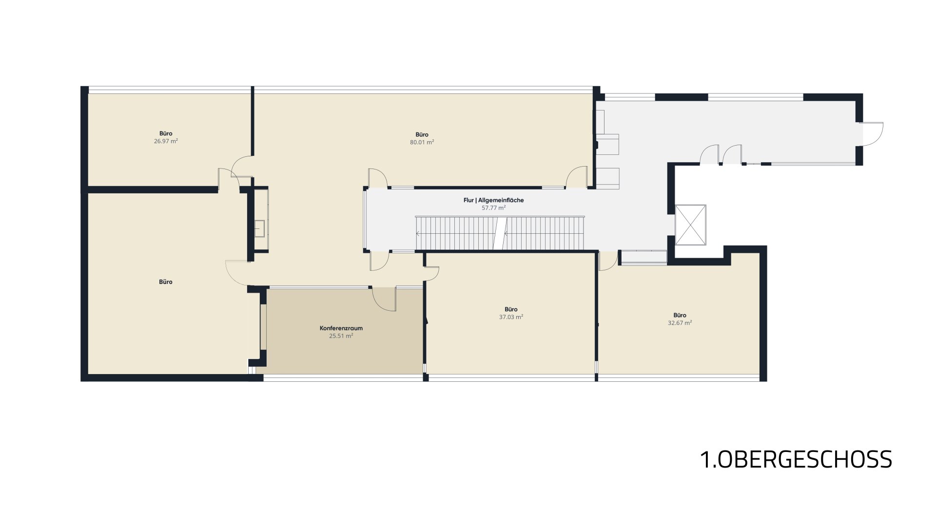
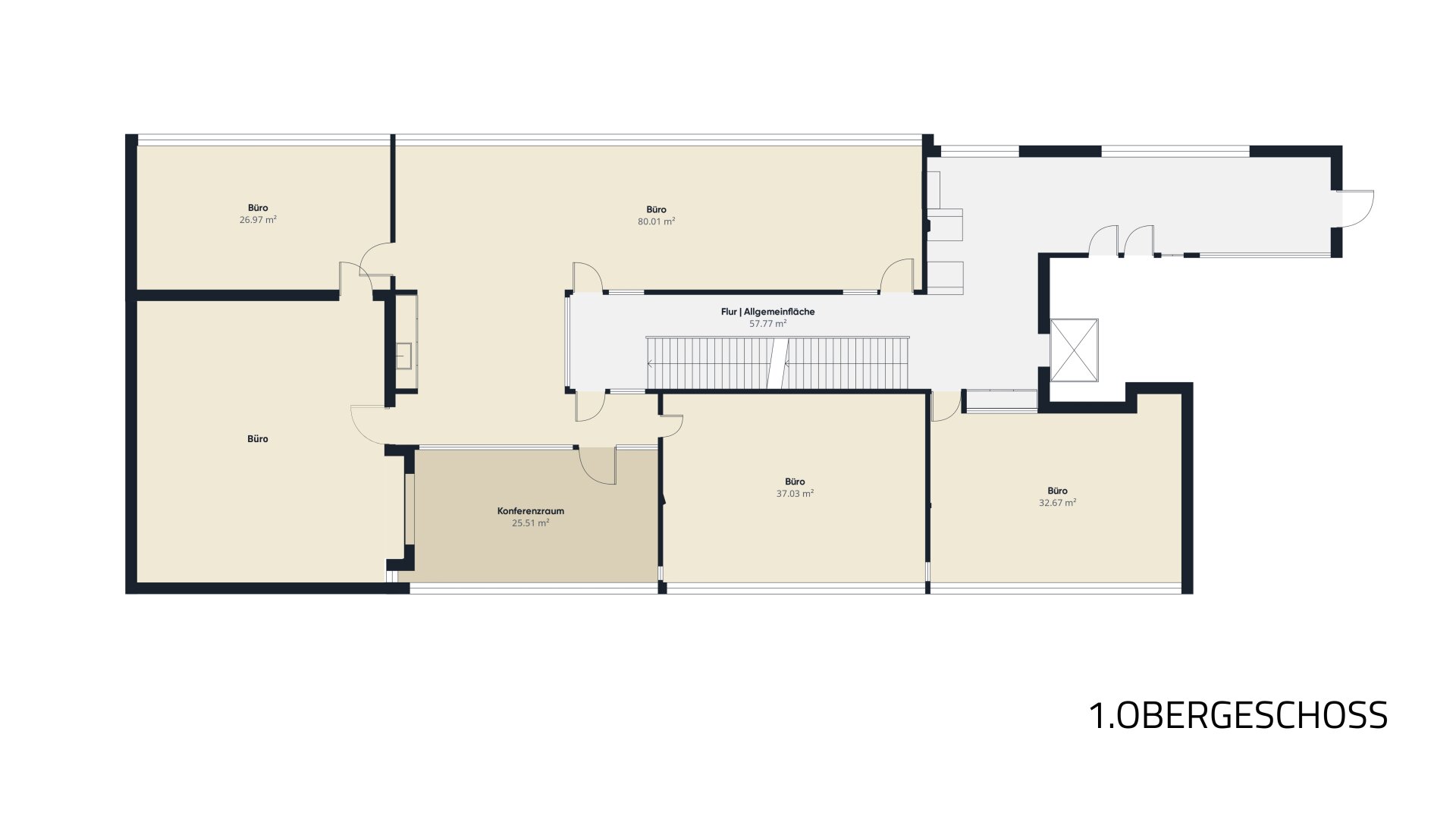
Nutzfläche: 507 m2
Gesamtfläche: 0 m2
Ziimmer insgesamt: 0
Schlafzimmer: 0
Badezimmer: 0
Nutzungsart: Gewerbe
Provisionspflichtig: ja
Provision: 3% des Kaufpreises zzgl. 20% USt.
HWB: 69 kWh/(m²*a)
HWB Klasse: C
FGEE: 1.07
E-Ausweis Gültig Bis:: 27.02.2027
Energieausweis Art: Bedarf
Personenaufzug
Gas
Zentralheizung
Teppich
Klimaanlage
Räume veränderbar
Teeküche
Tiefgarage
Hotel-Restaurant






