Objektbeschreibung
EIGENGRUND NÄHE ALTE DONAU – FREIFLÄCHEN – LUFTWÄRMEPUMPE – KELLER – GARAGE – U-BAHN!
Tauchen Sie ein in die exklusive Welt dieses herausragenden Projekts im begehrten 22. Bezirk! Hier wird Wohnen zu einem einzigartigen Erlebnis. Die besondere Lage dieses Neubaus setzt neue Maßstäbe für urbanes Wohnen und bietet nicht nur
Mehr lesen
Objekt ID: 1061698
Preis: € 516.990
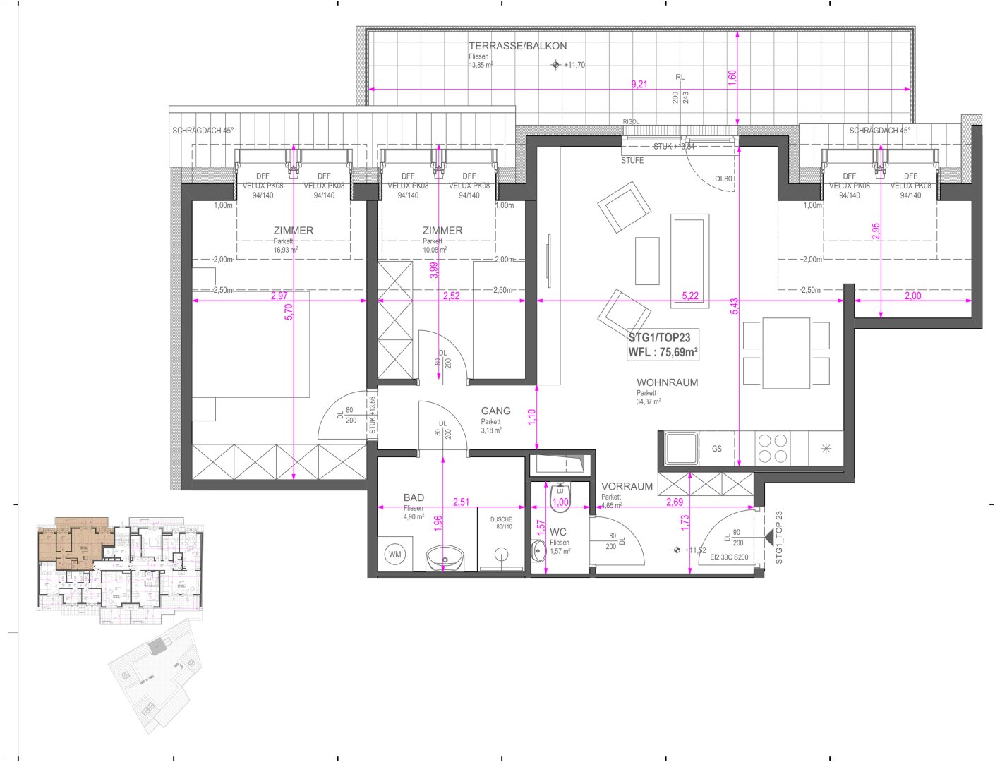
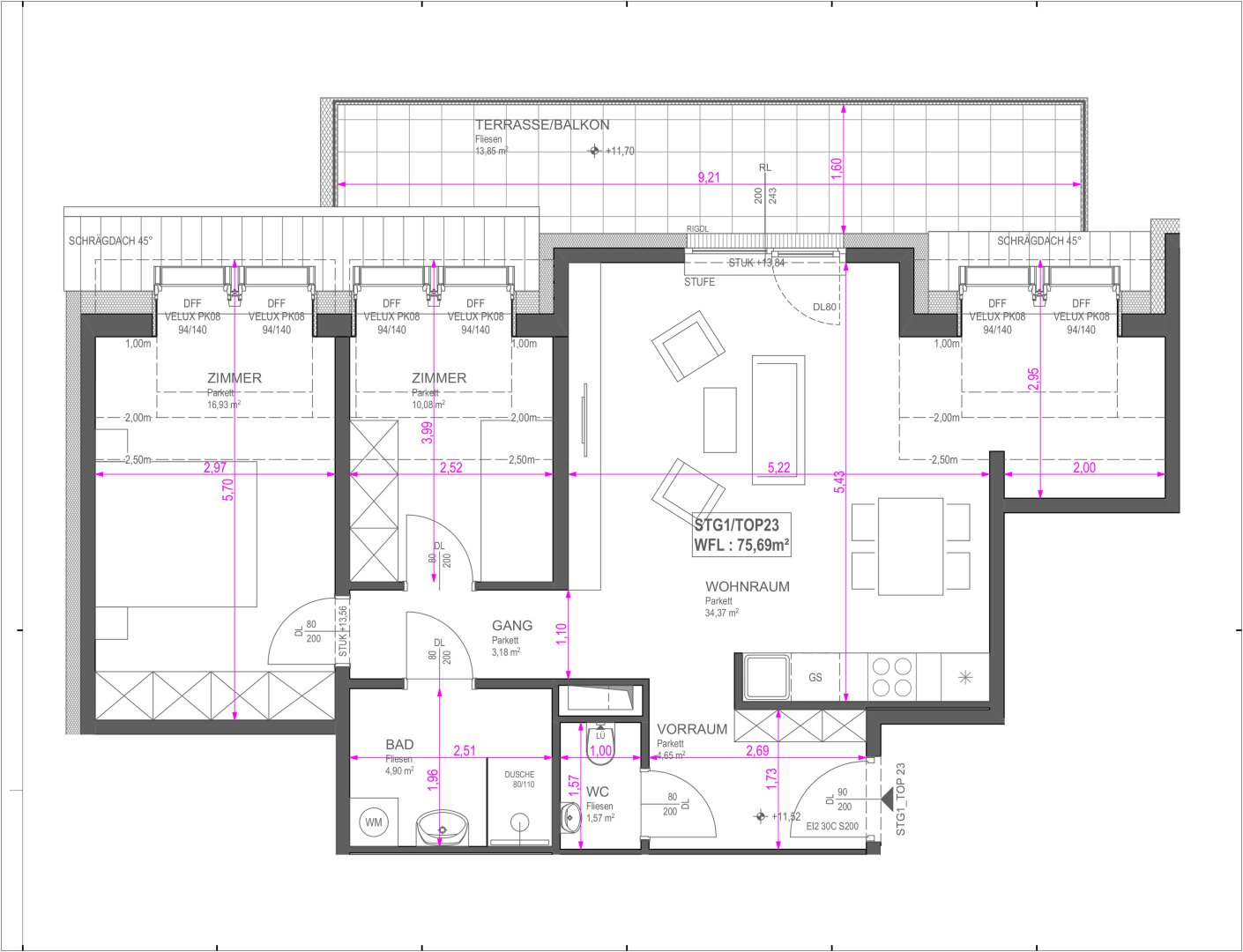
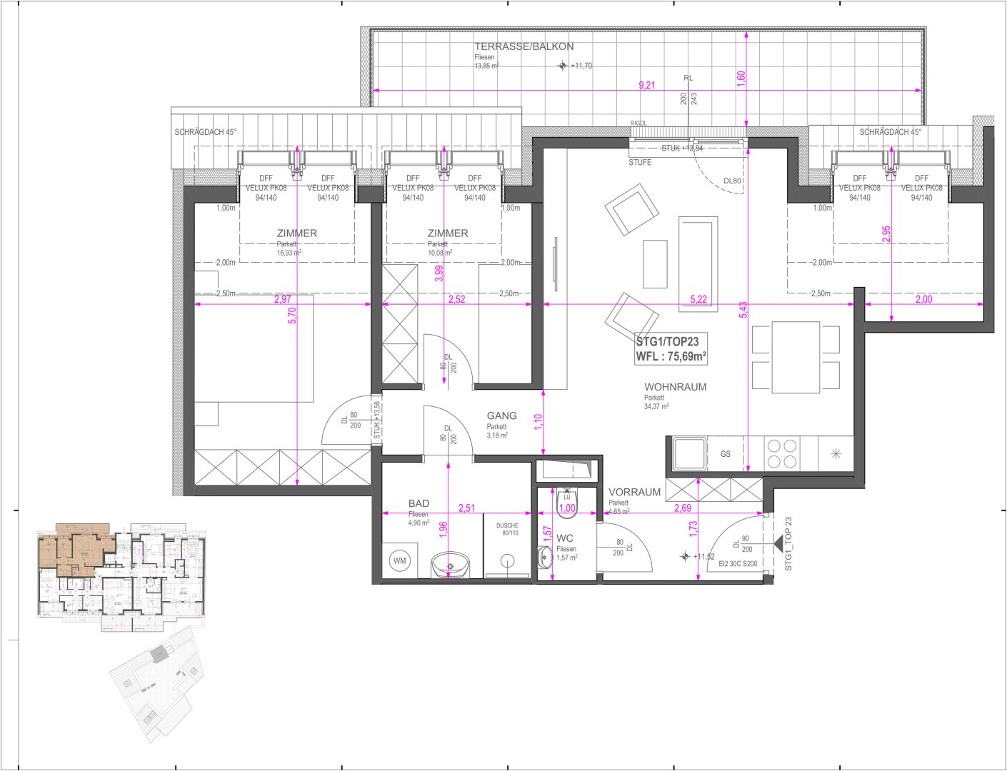
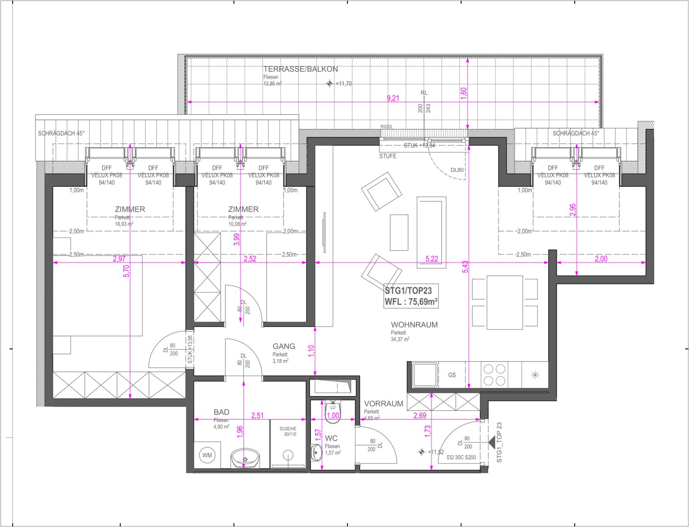
Nutzfläche: 76 m2
Gesamtfläche: 90 m2
Ziimmer insgesamt: 3
Schlafzimmer: 3
Badezimmer: 1
Nutzungsart: Wohnen
Provisionspflichtig: ja
Provision: 3% des Kaufpreises zzgl. 20% USt.
HWB: 24,20 kWh/(m²*a)
HWB Klasse: B
FGEE: 0.77
E-Ausweis Gültig Bis:: 18.06.2030
Energieausweis Art: Bedarf
Anzahl Balkone: 1
Balkon/Terrassen - Fläche: 13
Beziehbar: 31.08.2025
Etage: 1. DG / 1.DG mit Lift
WC: 1
Balkon
barrierefrei
Neubau
WG-geeignet
Personenaufzug
Gäste-WC
Dusche
Fußbodenheizung
Kabel/Sat-TV
offene Küche
Offene Küche
rollstuhlgerecht
Luft-Wärmepumpe
Massiv
Massivbauweise
Estrich
Gartennutzung
schlüsselfertig mit Keller
seniorengerecht
Räume veränderbar
Ähnliche Objekte
Stilaltbauwohnung in toller Lage! seltene Ge...
€ 599.900
5
Schlafzimmer
1
Badezimmer
123 m2
Größe
April 16, 2026
Klimatisierte Traumwohnung zum selbst gestal...
€ 890.000
4
Schlafzimmer
3
Badezimmer
157 m2
Größe
April 16, 2026
Danubeflats – Österreichs höchstes Wohnhochh...
€ 996.000
3
Schlafzimmer
1
Badezimmer
67 m2
Größe
April 16, 2026










