Objektbeschreibung
EIGENGRUND NÄHE ALTE DONAU – FREIFLÄCHEN – LUFTWÄRMEPUMPE – KELLER – GARAGE – U-BAHN!
Tauchen Sie ein in die exklusive Welt dieses herausragenden Projekts im begehrten 22. Bezirk! Hier wird Wohnen zu einem einzigartigen Erlebnis. Die besondere Lage dieses Neubaus setzt neue Maßstäbe für urbanes Wohnen und bietet nicht nur
Mehr lesen
Objekt ID: 1061894
Preis: € 299.900
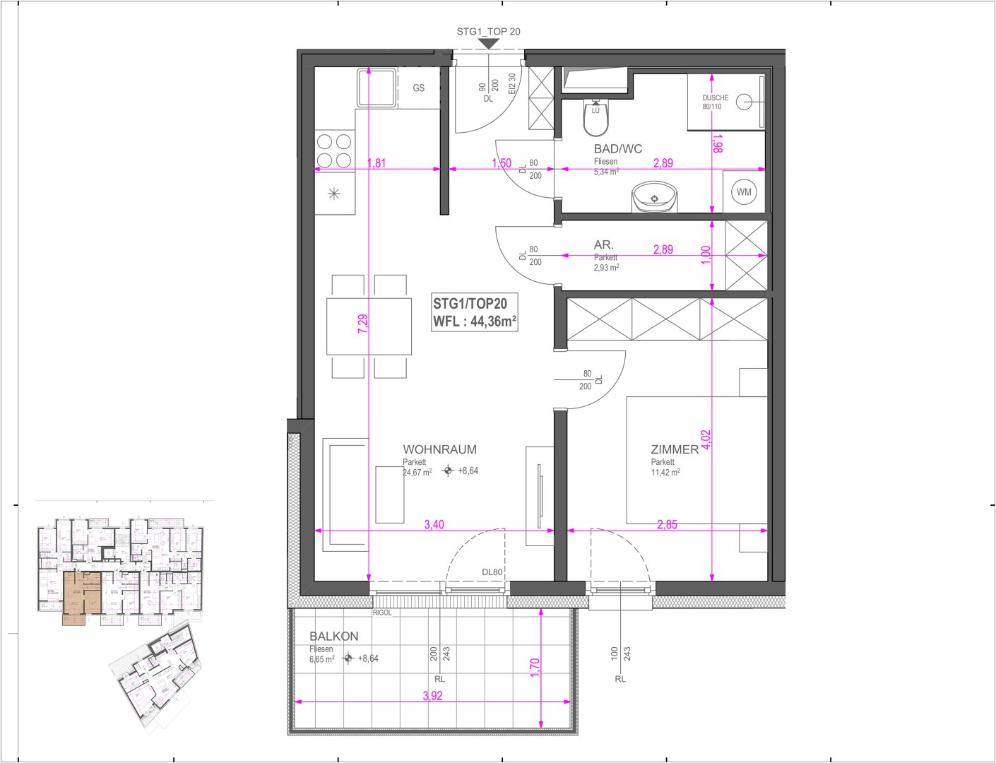
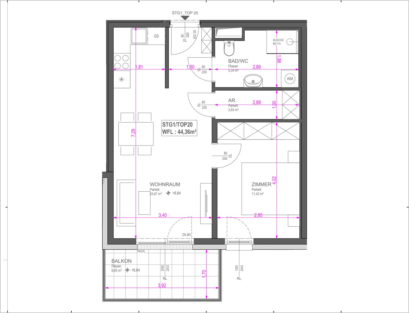
Nutzfläche: 44 m2
Gesamtfläche: 51 m2
Ziimmer insgesamt: 2
Schlafzimmer: 2
Badezimmer: 1
Nutzungsart: Wohnen
Provisionspflichtig: ja
Provision: 3% des Kaufpreises zzgl. 20% USt.
HWB: 24,20 kWh/(m²*a)
HWB Klasse: B
FGEE: 0.77
E-Ausweis Gültig Bis:: 18.06.2030
Energieausweis Art: Bedarf
Anzahl Balkone: 1
Balkon/Terrassen - Fläche: 6
Beziehbar: 31.08.2025
Etage: 3. Etage / 3. Liftstock
WC: 1
Abstellräume: 1
Balkon
barrierefrei
Neubau
WG-geeignet
Personenaufzug
Dusche
Fußbodenheizung
Kabel/Sat-TV
offene Küche
Abstellraum
Offene Küche
rollstuhlgerecht
Luft-Wärmepumpe
Massiv
Massivbauweise
Estrich
Gartennutzung
schlüsselfertig mit Keller
seniorengerecht
Räume veränderbar
Ähnliche Objekte
Idealer Grundriss, gepflegtes Haus, tolle Au...
€ 325.000 pro Monat
3
Schlafzimmer
1
Badezimmer
76 m2
Größe
April 22, 2026
Wohnungspaket mit Garagenplatz in der Speisi...
€ 299.000 pro Monat
2
Schlafzimmer
1
Badezimmer
54 m2
Größe
April 22, 2026












