Objektbeschreibung
In unmittelbarer Nähe des Hauptbahnhofes und nur eine Minute von der U1-Station Keplerplatz entfernt, gelangen exklusive und stylisch konzipierte Erstbezugswohnungen zum Verkauf.
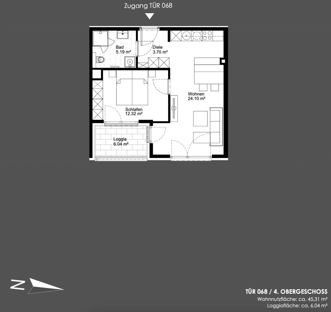
MAJA setzt auf eine moderne und effiziente Raumgestaltung, ohne dabei Kompromisse bei der gehobenen Qualität einzugehen. Jede Wohneinheit verfügt über eine eigene Freifläche, zudem stehen ein Fahrradraum sowie
Mehr lesen
Objekt ID: 1062777
Preis: € 309.900
Nutzfläche: 45 m2
Gesamtfläche: 51 m2
Ziimmer insgesamt: 2
Schlafzimmer: 2
Badezimmer: 1
Nutzungsart: Wohnen
Provisionspflichtig: ja
Provision: 3% des Kaufpreises zzgl. 20% USt.
HWB: 21,60 kWh/(m²*a)
HWB Klasse: B
FGEE: 0.75
E-Ausweis Gültig Bis:: 24.01.2034
Energieausweis Art: Bedarf
Balkon/Terrassen - Fläche: 6
Beziehbar: sofort
Etage: 4. Etage / 4. Liftstock
WC: 1
barrierefrei
Neubau
WG-geeignet
Personenaufzug
Dusche
Fußbodenheizung
Kabel/Sat-TV
offene Küche
Offene Küche
Rollläden
rollstuhlgerecht
Estrich
Fernwärme
schlüsselfertig mit Keller
seniorengerecht
Räume veränderbar
Ähnliche Objekte
RUHIGE 2 ZIMMER MIT BALKON NAHE TAUBSTUMMENG...
€ 395.000
2
Schlafzimmer
1
Badezimmer
58 m2
Größe
März 3, 2026











