Objektbeschreibung
Willkommen in Tattendorf – wo ländliche Ruhe auf modernen Wohnkomfort trifft! Dieses gepflegte Reihenhaus aus dem Jahr 1998 bietet mit rund 130 m² Wohnfläche und einem großzügigen Garten samt Pool die ideale Wohnlösung für Familien oder Paare. Durchdacht geschnittene Räume, ein gemütlicher Außenbereich sowie ein vielseitig nutzbarer Keller schaffen ein
Mehr lesen
Objekt ID: 1083313
Preis: € 399.000
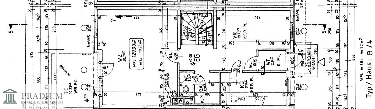
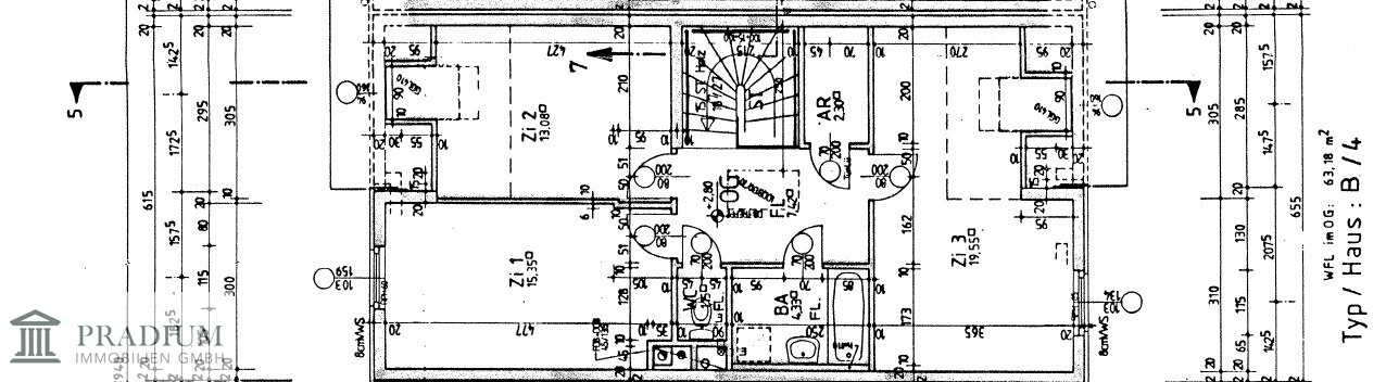
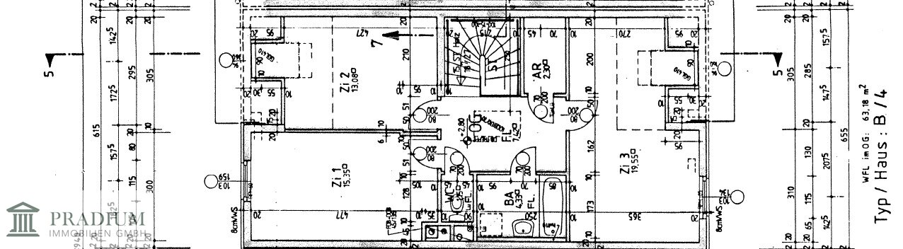
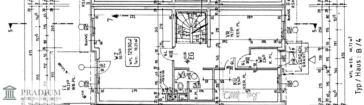
Nutzfläche: 130 m2
Gesamtfläche: 191 m2
Ziimmer insgesamt: 5
Schlafzimmer: 5
Badezimmer: 1
Nutzungsart: Wohnen
Provisionspflichtig: ja
Provision: 3% des Kaufpreises zzgl. 20% USt.
HWB: 57,20 kWh/(m²*a)
HWB Klasse: C
FGEE: 1.4
E-Ausweis Gültig Bis:: 18.04.2034
Energieausweis Art: Bedarf
Balkon/Terrassen - Fläche: 31
WC: 2
Abstellräume: 2
Neubau
Einbauküche
Gäste-WC
Gas
Parkett
Badewanne
Massiv
Massivbauweise
vollerschlossen
























