Objektbeschreibung
Poreč-Gebiet – Modernes Niedrigenergiehaus mit Swimmingpool in toller Lage! Neubau!
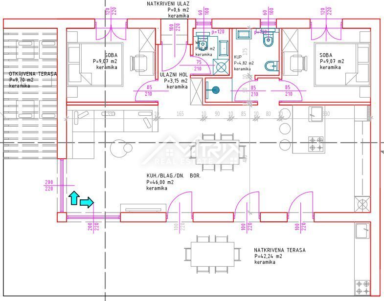
Wir präsentieren Ihnen dieses vorgefertigte moderne einstöckige Haus mit Swimmingpool, gelegen am Rande der Bauzone einer ruhigen Siedlung in der Nähe des Meeres und der Stadt Poreč. Dieses wunderschöne Haus bietet einen Blick auf Olivenbäume und Natur und schafft so
Mehr lesen
Objekt ID: 1125951
Preis: € 430.000
Nutzfläche: 0 m2
Gesamtfläche: 575 m2
Ziimmer insgesamt: 3
Schlafzimmer: 3
Badezimmer: 1
Nutzungsart: Wohnen
Provisionspflichtig: ja
WC: 1

































