Objektbeschreibung
Poreč, Umgebung – Moderne Wohnung mit Pool in der Nähe des Meeres und des Zentrums! Seeblick!
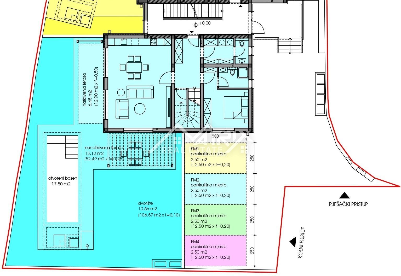
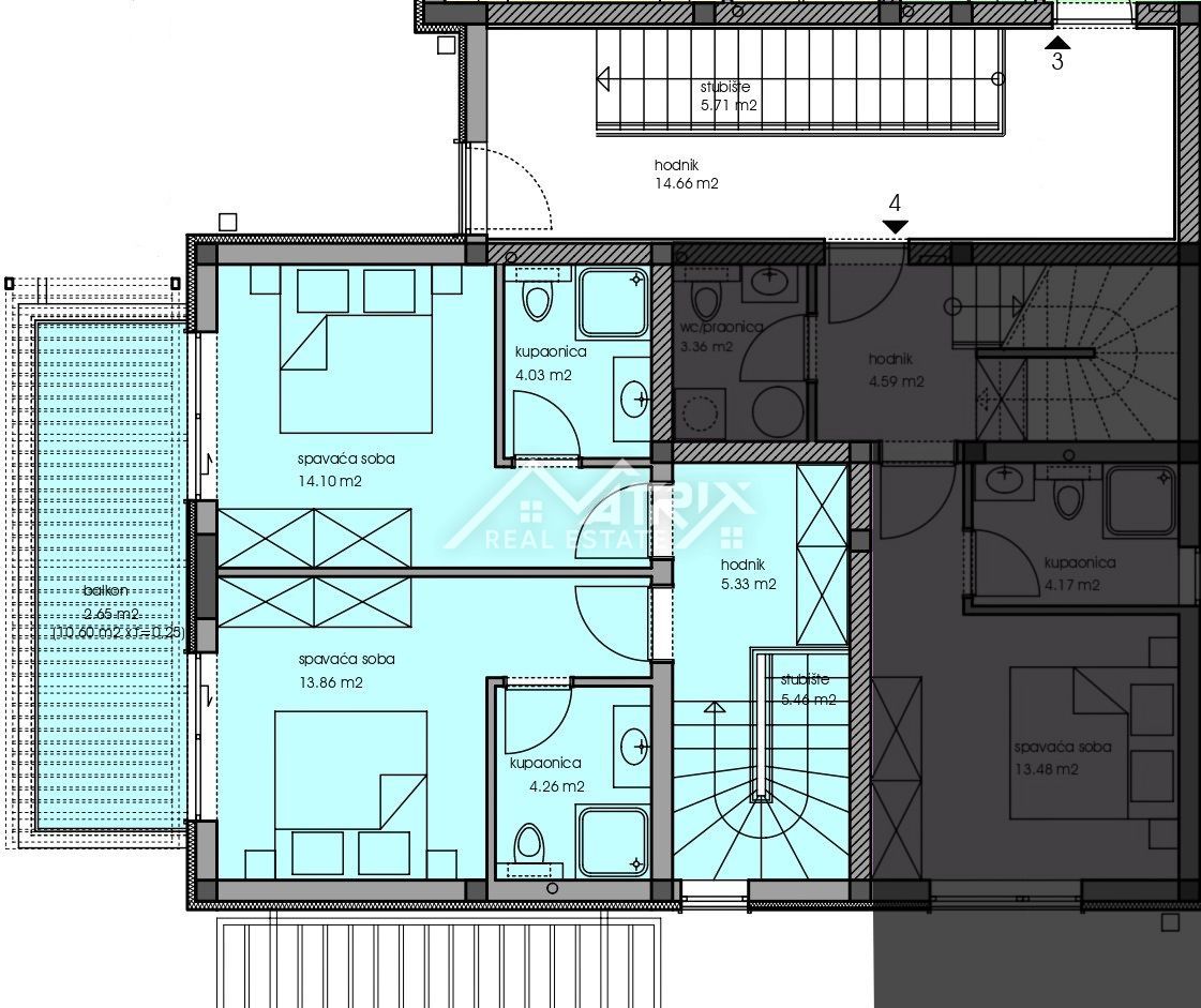
Willkommen in dieser wunderschönen Wohnung mit einer Gesamtwohnfläche von 158 m2, gelegen in wunderschöner Lage direkt am Meer und dem Stadtzentrum an der wunderschönen Westküste Istriens. Die Wohnung befindet sich in einem Gebäude mit
Mehr lesen
Objekt ID: 1157130
Preis: € 580.000
Nutzfläche: 0 m2
Gesamtfläche: 0 m2
Ziimmer insgesamt: 4
Schlafzimmer: 4
Badezimmer: 3
Nutzungsart: Wohnen
Provisionspflichtig: ja
WC: 1

























