Objektbeschreibung
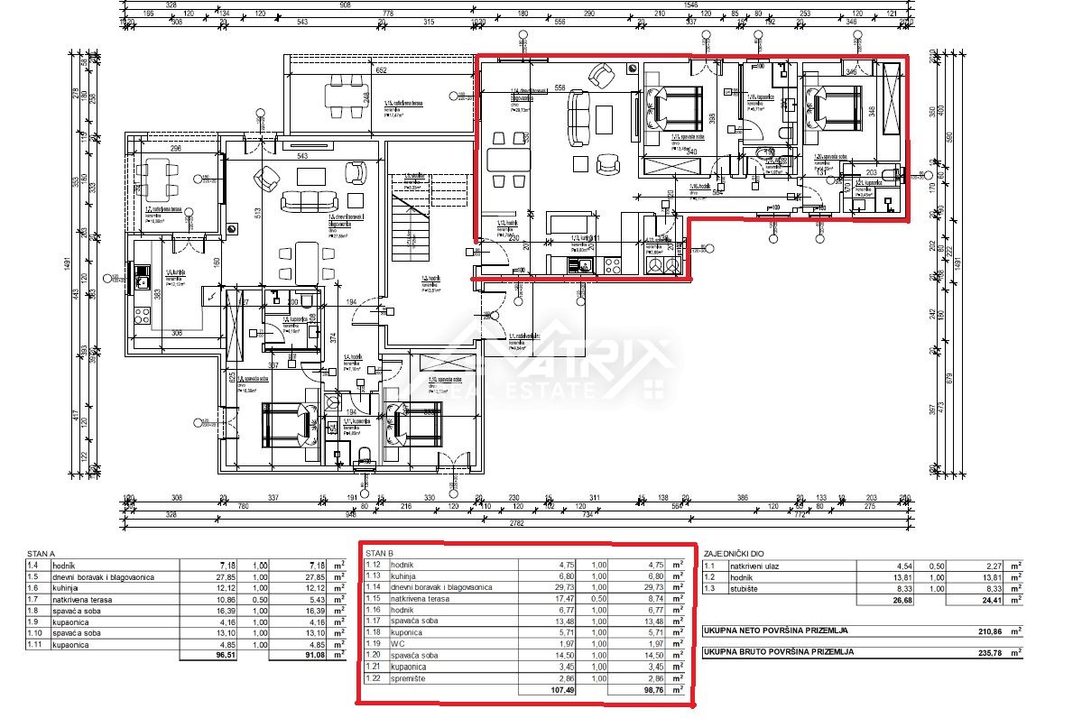
Eine Wohnung in einem Wohngebäude mit fünf Einheiten steht zum Verkauf, nur wenige Schritte vom Meer und der Stadt entfernt. Die Wohnung befindet sich im Erdgeschoss, hat eine Fläche von 98,76 m² und besteht aus einem geräumigen Wohnzimmer, einer Küche und einem Essbereich im offenen Konzept, zwei komfortablen Schlafzimmern, zwei
Mehr lesen
Objekt ID: 1159951
Preis: € 355.000
Nutzfläche: 0 m2
Gesamtfläche: 0 m2
Ziimmer insgesamt: 3
Schlafzimmer: 3
Badezimmer: 2
Nutzungsart: Wohnen
Provisionspflichtig: ja
WC: 1











