Objektbeschreibung
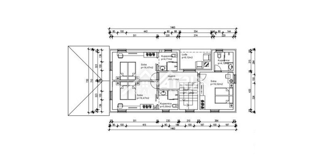
Dieses Baugrundstück befindet sich in einem ruhigen Dorf in der Nähe von Barban und eignet sich ideal für den Bau eines Einfamilienhauses oder einer Ferienvilla. Mit einer Fläche von 784 m² ist das Grundstück bereits mit allen erforderlichen Genehmigungen und dem Hauptprojekt ausgestattet, was bedeutet, dass der Bau sofort beginnen
Mehr lesen
Objekt ID: 1160236
Preis: € 103.000
Nutzfläche: 0 m2
Gesamtfläche: 0 m2
Ziimmer insgesamt: 0
Schlafzimmer: 0
Badezimmer: 0
Nutzungsart: Anlage
Provisionspflichtig: ja
















