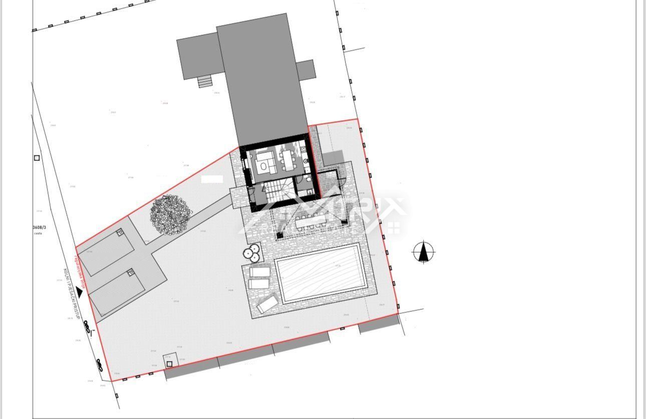
Objektbeschreibung
Das Haus befindet sich derzeit in der Renovierungsphase, mit geplanter Fertigstellung im Sommer 2025.
Das Haus wird komplett möbliert verkauft.
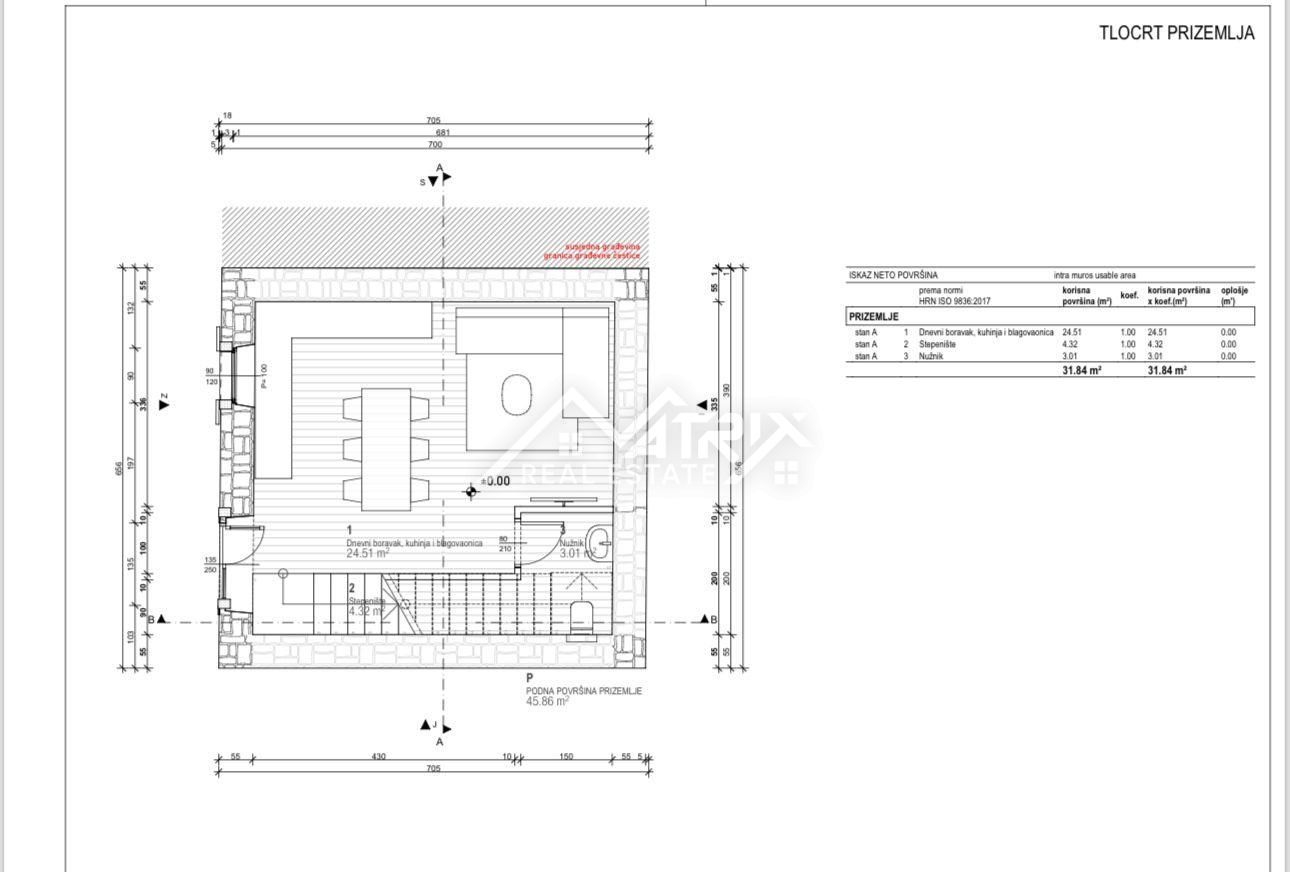
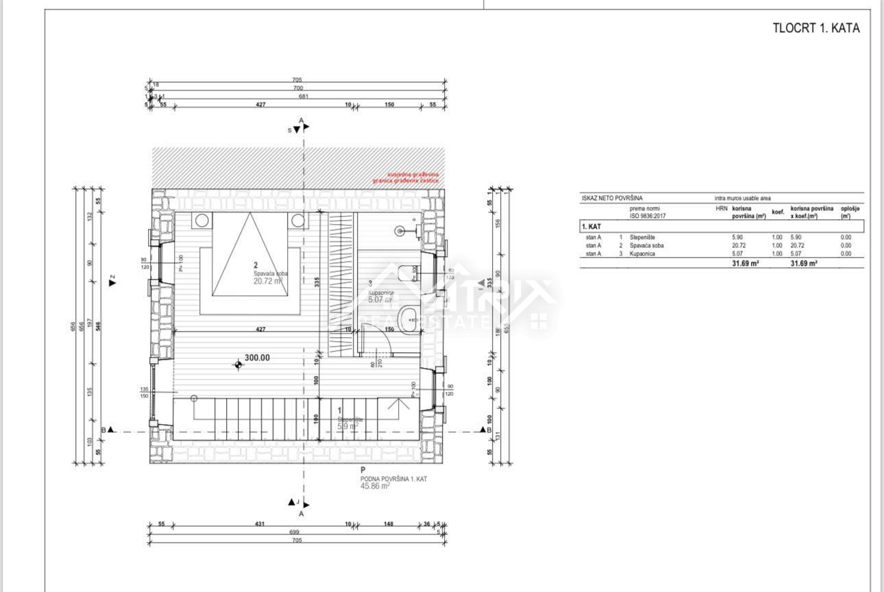
Nach Fertigstellung wird das Haus aus einem Erdgeschoss bestehen, in dem sich ein Wohnzimmer, eine Küche, ein Essbereich und ein WC befinden. Im ersten Stock wird sich ein
Mehr lesen
Objekt ID: 1160709
Preis: € 585.000
Nutzfläche: 0 m2
Gesamtfläche: 460 m2
Ziimmer insgesamt: 3
Schlafzimmer: 3
Badezimmer: 2
Nutzungsart: Wohnen
Provisionspflichtig: ja
WC: 1



























