Objektbeschreibung
Region Medulin – Moderne Villa mit Pool, nur 100 Meter vom Meer entfernt!
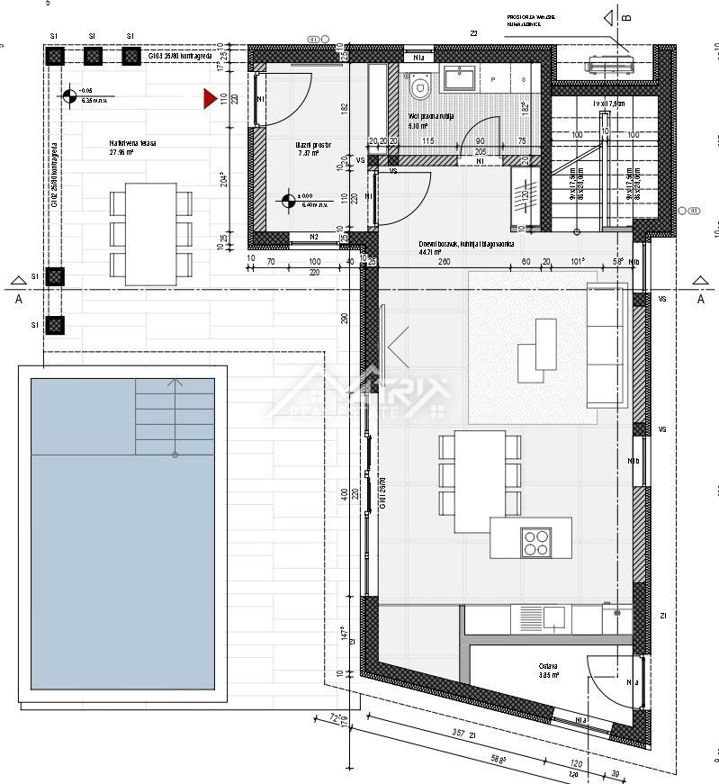
In einer ruhigen Siedlung unweit von Medulin, nur 100 Meter vom Meer entfernt, steht dieses moderne Haus in der Rohbau-Bauphase zum Verkauf. Der angegebene Preis beinhaltet alles bis zur Rohbau-Bauphase, der Investor bietet jedoch die Möglichkeit, das
Mehr lesen
Objekt ID: 1161026
Preis: € 586.000
Nutzfläche: 0 m2
Gesamtfläche: 510 m2
Ziimmer insgesamt: 4
Schlafzimmer: 4
Badezimmer: 2
Nutzungsart: Wohnen
Provisionspflichtig: ja
WC: 1
Ähnliche Objekte
Medulin Apartmenthaus 600 m2 mit Pool, 150m ...
€ 1.300.000
30
Schlafzimmer
16
Badezimmer
April 16, 2026
















