Objektbeschreibung
Das exklusive Projekt Veli Maj in Istrien, gelegen in Poreč, bietet 54 Wohnungen und 42 Gewerbeflächen für gemischte Nutzung (wohnen und gewerblich).
Das Projekt besteht aus drei Hauptbereichen: dem zentralen, südlichen und nördlichen Teil, mit einem Pool und einer Tiefgarage innerhalb des Gebäudes.
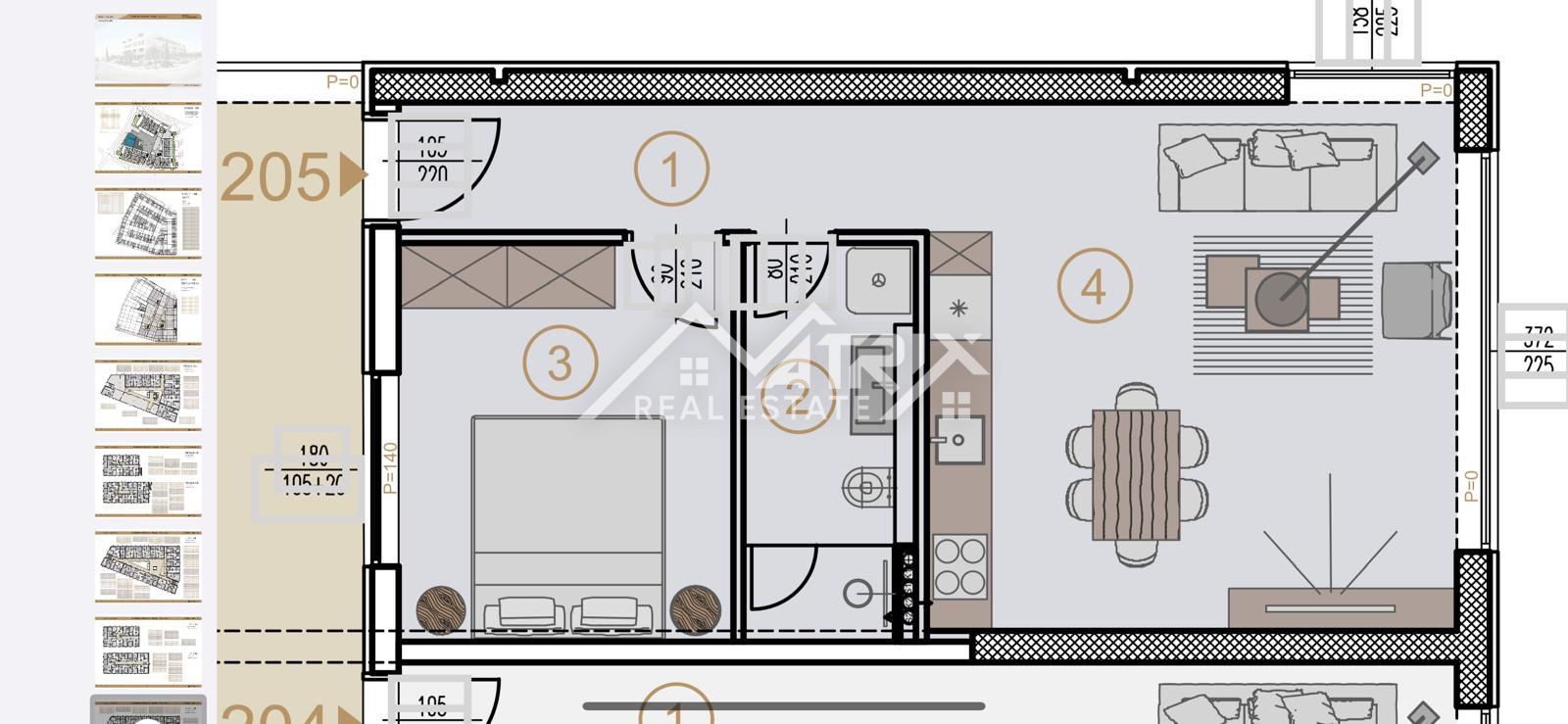
Die Wohnung befindet sich im zweiten Stock
Mehr lesen
Objekt ID: 1161252
Preis: € 225.000
Nutzfläche: 0 m2
Gesamtfläche: 0 m2
Ziimmer insgesamt: 2
Schlafzimmer: 2
Badezimmer: 1
Nutzungsart: Wohnen
Provisionspflichtig: ja













