Objektbeschreibung
Novigrad – Wohnung im zweiten Stock, in toller Lage, 700 m vom Meer entfernt! Neubau!
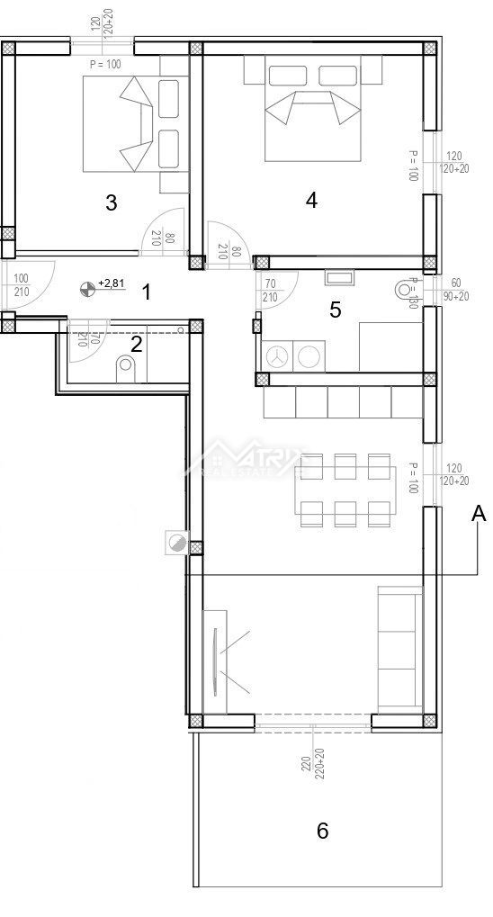
Willkommen in dieser wunderschönen Wohnung mit einer Gesamtfläche von 78,07 m2, in ausgezeichneter Lage, ganz in der Nähe des Meeres und der Stadt und nur wenige Gehminuten von allen notwendigen Annehmlichkeiten entfernt. Die Wohnung befindet
Mehr lesen
Objekt ID: 1162073
Preis: € 330.000
Nutzfläche: 0 m2
Gesamtfläche: 0 m2
Ziimmer insgesamt: 3
Schlafzimmer: 3
Badezimmer: 1
Nutzungsart: Wohnen
Provisionspflichtig: ja
WC: 1





