Objektbeschreibung
Poreč – Umgebung, ein schönes Haus mit Schwimmbad in der Nähe der Stadt und des Meeres
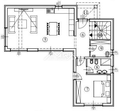
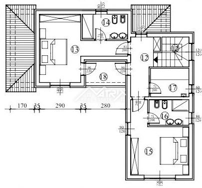
In einem ruhigen Dorf, nicht weit von der Stadt Poreč und dem Meer entfernt, befindet sich dieses freistehende, moderne Haus mit Swimmingpool im Bau. Das Haus erstreckt sich über drei Etagen: Erdgeschoss, Obergeschoss und
Mehr lesen
Objekt ID: 1164759
Preis: € 730.000
Nutzfläche: 0 m2
Gesamtfläche: 520 m2
Ziimmer insgesamt: 4
Schlafzimmer: 4
Badezimmer: 3
Nutzungsart: Wohnen
Provisionspflichtig: ja




























