Objektbeschreibung
MAURERWALD LIVING! WO LUXUS AUF IDYLLE TRIFFT!
In einer der begehrtesten Lagen des 23. Wiener Bezirkes wurde eine exklusive Stadtvilla mit nur 6 exklusiven Wohneinheiten errichtet, die sämtlichen Komfort und eine luxuriöse Ausstattung bietet.
Die Stadtvilla befindet sich an einer sehr prominenten und gefragten Wohnlage, sowohl in Bezug auf
Mehr lesen
Objekt ID: 1172542
Preis: € 1.049.000
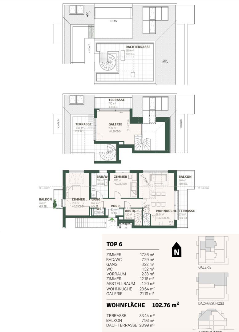
Nutzfläche: 103 m2
Gesamtfläche: 173 m2
Ziimmer insgesamt: 4
Schlafzimmer: 4
Badezimmer: 1
Nutzungsart: Wohnen
Provisionspflichtig: ja
Provision: 3% des Kaufpreises zzgl. 20% USt.
HWB: 35,60 kWh/(m²*a)
HWB Klasse: B
FGEE: 0.71
E-Ausweis Gültig Bis:: 24.11.2032
Energieausweis Art: Bedarf
Anzahl Balkone: 2
Balkon/Terrassen - Fläche: 70
Beziehbar: sofort
Etage: 1. DG / 1-2. Dachgeschoss
WC: 2
Abstellräume: 1
Balkon
barrierefrei
Neubau
WG-geeignet
Parkett
Badewanne
Fußbodenheizung
Abstellraum
Luft-Wärmepumpe
Ähnliche Objekte
NEU | Exklusive Aktion – Küche inklusive | J...
€ 279.000
2
Schlafzimmer
1
Badezimmer
42 m2
Größe
April 17, 2026
Traumhafte Dachwohnung im Hietzinger Cottage...
€ 1.390.000
4
Schlafzimmer
2
Badezimmer
142 m2
Größe
April 17, 2026

















