Objektbeschreibung
DANUBE LIVE DOPPELHAUS – STATUS: VERPUTZ AUSSEN UND MALERARBEITEN INNEN ABGESCHLOSSEN! JETZT ANFRAGEN FÜR BESICHTIGUNGSTERMINE
BAUFORTSCHRITT:
*
31.01.2026: AUSSENFASSADE VERPUTZT, MALERARBEITEN INNEN ABGESCHLOSSEN.
*
03.10.2025: BODEN, ESTRICH UND FUSSBODENHEIZUNG SIND VERLEGT.
*
30.09.2025: BAUPHASE 1 – ROHBAU MIT FENSTERN UND INSTALLATIONEN – ABGESCHLOSSEN!
Rückblick:
* 13.10.: Komplettierung Elektro- und
Mehr lesen
Objekt ID: 1179680
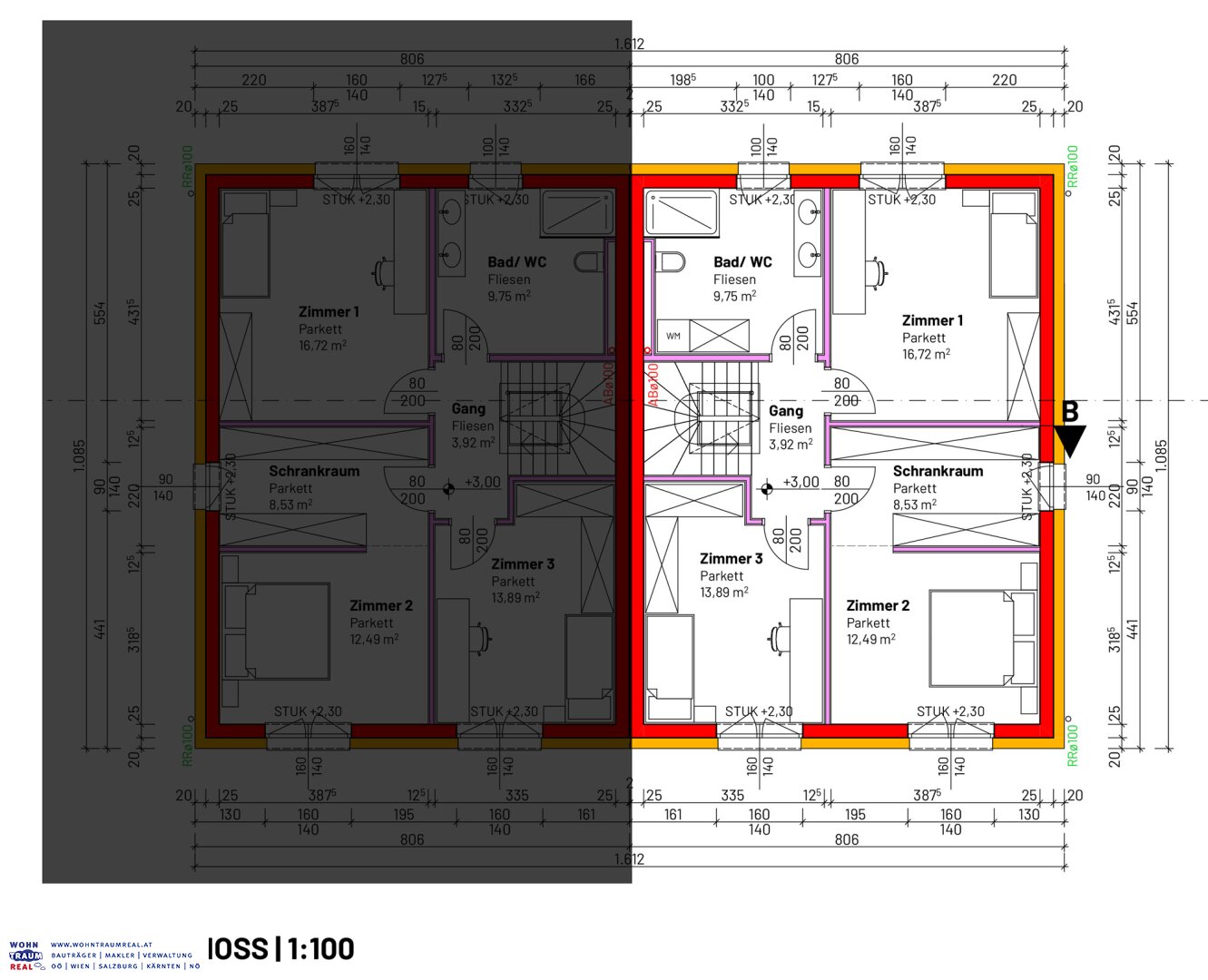
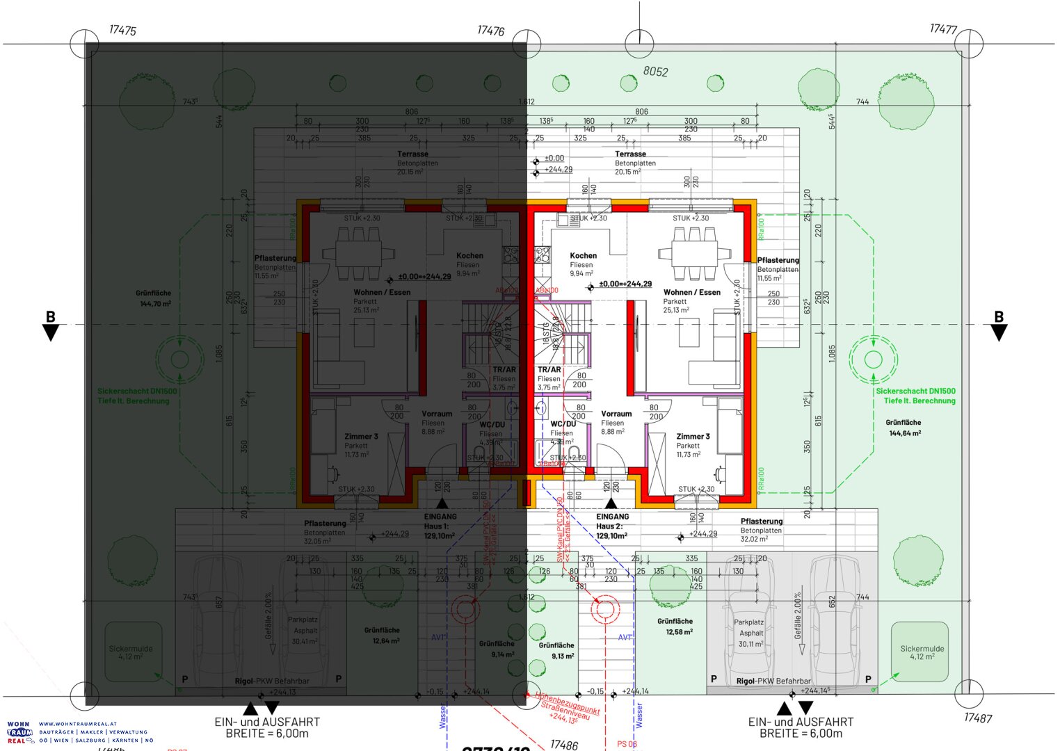
Nutzfläche: 129 m2
Gesamtfläche: 354 m2
Ziimmer insgesamt: 5
Schlafzimmer: 5
Badezimmer: 2
Nutzungsart: Wohnen
HWB: 42 kWh/(m²*a)
HWB Klasse: B
FGEE: 0.68
E-Ausweis Gültig Bis:: 07.04.2035
Energieausweis Art: Bedarf
Balkon/Terrassen - Fläche: 20
Beziehbar: Ende 2025
WC: 2
Abstellräume: 1
barrierefrei
Neubau
Gäste-WC
Bad mit Fenster
Fußbodenheizung
Abstellraum
Rollläden
Klimaanlage
Freiplatz
Luft-Wärmepumpe
Estrich
Flachdach
Neubaustandard


















