Objektbeschreibung
_Wir feiern den Winter bis zur Schneeschmelze!_
_ _
_In der kalten Jahreszeit lassen wir die Preise schmelzen: Beim Kauf einer Eigentumswohnung in einem unserer Objekte in der Berresgasse ersparst du dir bis 31.3.2026 die Nebenkosten* und bekommst so jede Wohnung um 6,5% günstiger. Darüber hinaus schenken wir dir noch einen
Mehr lesen
Dokumente
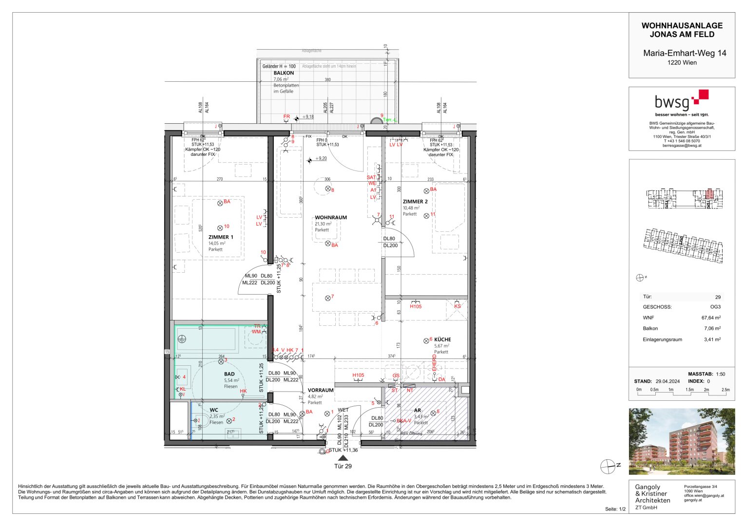
Objekt ID: 1220943
Preis: € 347.258
Nutzfläche: 68 m2
Gesamtfläche: 0 m2
Ziimmer insgesamt: 3
Schlafzimmer: 3
Badezimmer: 0
Nutzungsart: Wohnen
HWB: 23,40 kWh/(m²*a)
HWB Klasse: B
FGEE: 0.75
E-Ausweis Gültig Bis:: 20.04.2033
Energieausweis Art: Bedarf
Balkon/Terrassen - Fläche: 7
Beziehbar: Mai 2025
Etage: 3.OG
Neubau
Parkett
Ähnliche Objekte
Exklusive Garten-Maisonette in revitalisiert...
€ 2.870.000
4
Schlafzimmer
2
Badezimmer
181 m2
Größe
Januar 13, 2026
Sievering I Balkonwohnung I Saniert [A\]
€ 598.000
3
Schlafzimmer
1
Badezimmer
70 m2
Größe
Januar 13, 2026





![Sievering I Balkonwohnung I Saniert [A] 7IW4xHkFwrM5ifGpPAUp7A](https://gesucht-gefunden.at/wp-content/uploadstorage/2026/01/7IW4xHkFwrM5ifGpPAUp7A-525x350.jpg)

