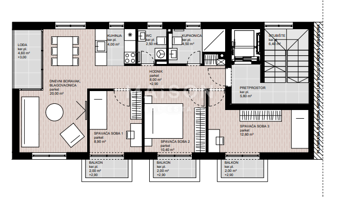
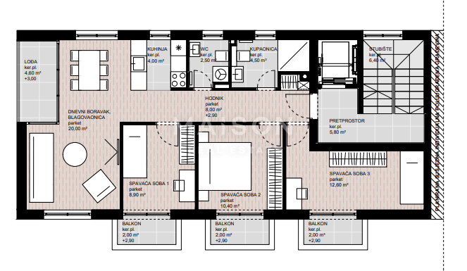
Objektbeschreibung
Wohnung 10d – 2 Schlafzimmer + Wohnzimmer mit Balkon und Loggia
Stock | Nettofläche 58,10 m² | Tiefgaragenstellplatz auf Ebene -1
Im Rahmen einer neu geplanten, sorgfältig entwickelten Wohnsiedlung im Zagreber Stadtteil Dubrava wird eine Wohnung angeboten, die sich durch ihre Aufteilung, Ausrichtung und das Raumgefühl als ideales Zuhause für
Mehr lesen
Objekt ID: 1225786
Preis: € 262.990
Nutzfläche: 0 m2
Gesamtfläche: 0 m2
Ziimmer insgesamt: 4
Schlafzimmer: 4
Badezimmer: 1
Nutzungsart: Wohnen
Provisionspflichtig: ja
WC: 1


















