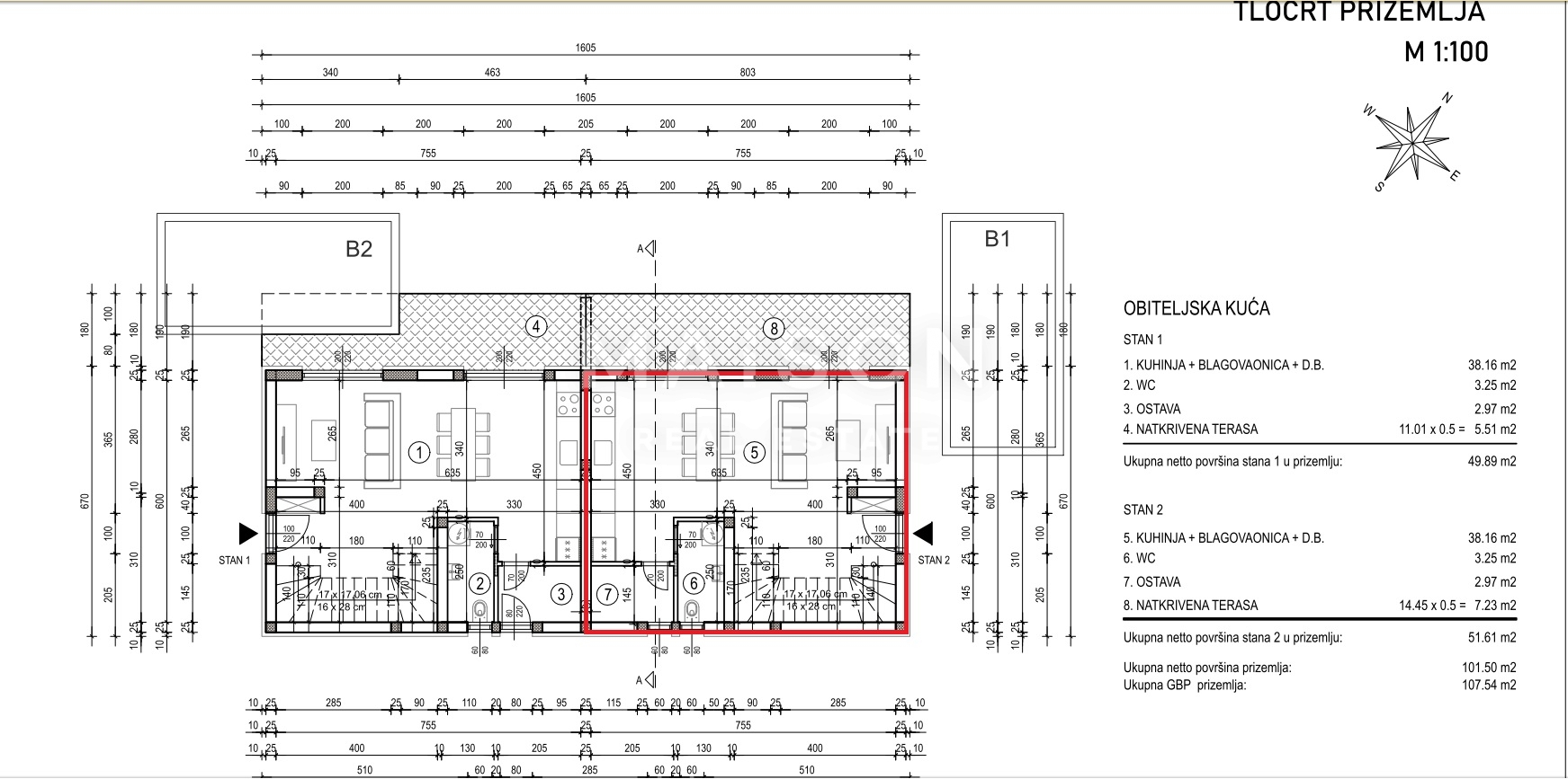
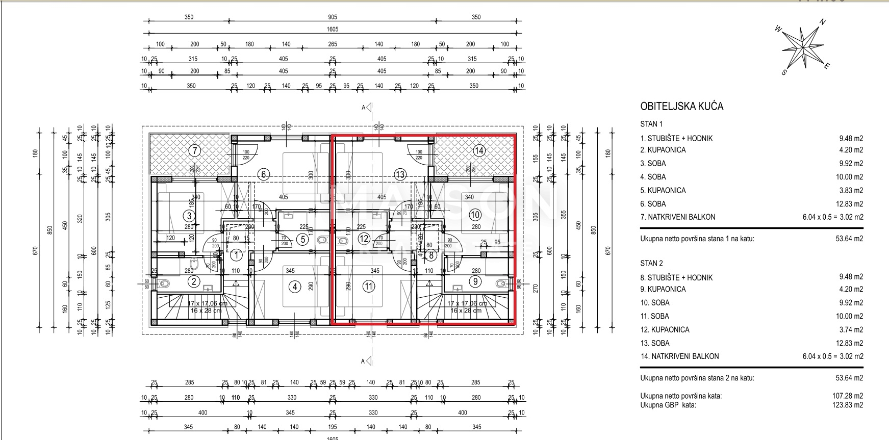
Objektbeschreibung
In einer ruhigen Gegend von Malinska, nur 600 Meter vom Meer und dem Ortszentrum entfernt, entsteht dieses moderne Doppelhaus mit geplanter Bauausführung ab September 2025. Es wurde mit besonderem Fokus auf Komfort, Ästhetik und Funktionalität entworfen und bietet 119,59 m² modernen Wohnraum auf zwei Etagen.
Im Erdgeschoss entsteht ein großzügiger,
Mehr lesen
Objekt ID: 1225802
Preis: € 550.000
Nutzfläche: 0 m2
Gesamtfläche: 200 m2
Ziimmer insgesamt: 4
Schlafzimmer: 4
Badezimmer: 2
Nutzungsart: Wohnen
Provisionspflichtig: ja
WC: 1









