Objektbeschreibung
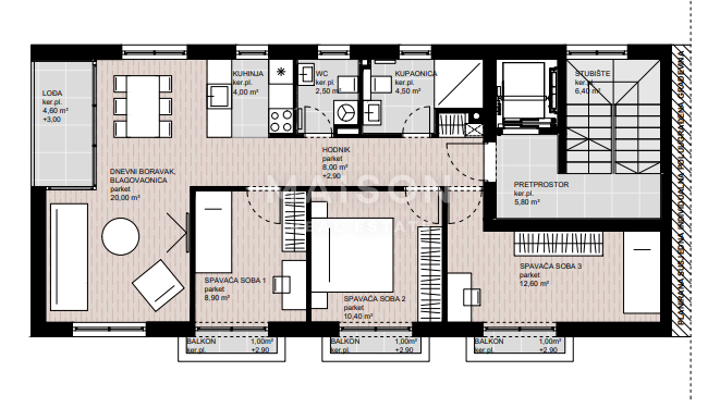
Wohnung 7b – 3 Schlafzimmer + Wohnzimmer mit Loggia
Etage | Nettofläche 70,90 m² | Tiefgaragenstellplatz in Ebene -1
In einem neu geplanten, sorgfältig gestalteten Wohnviertel im Zagreber Stadtteil Dubrava befindet sich diese Wohnung, die sich durch ihren Grundriss, ihre Ausrichtung und ihr Raumgefühl als ideales Zuhause für eine urbane
Mehr lesen
Objekt ID: 1225823
Preis: € 257.890
Nutzfläche: 0 m2
Gesamtfläche: 0 m2
Ziimmer insgesamt: 4
Schlafzimmer: 4
Badezimmer: 1
Nutzungsart: Wohnen
Provisionspflichtig: ja
WC: 1
















