Objektbeschreibung
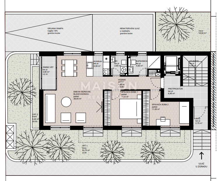
Wohnung 3A – 3ZKB mit Garten
Erdgeschoss | Nettofläche 67,90 m² | Garagenplatz im Untergeschoss -1
Im Rahmen eines neuen, sorgfältig geplanten Wohnkomplexes im Stadtteil Dubrava in Zagreb bieten wir eine Wohnung an, die sich durch ihre Aufteilung, Ausrichtung und das Raumgefühl als ideales Zuhause für eine urbane Familie
Mehr lesen
Objekt ID: 1225859
Preis: € 265.812
Nutzfläche: 0 m2
Gesamtfläche: 0 m2
Ziimmer insgesamt: 3
Schlafzimmer: 3
Badezimmer: 1
Nutzungsart: Wohnen
Provisionspflichtig: ja
WC: 1


















