Objektbeschreibung
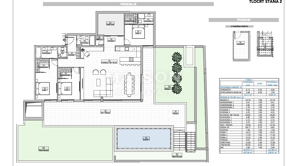
Luxuriöse Wohnung in der Nähe des Zentrums von Opatija, mit Panoramablick auf das Meer und vollständiger Privatsphäre, gleichzeitig in unmittelbarer Nähe zu allen wichtigen Annehmlichkeiten. Die Wohnung befindet sich im Erdgeschoss und erstreckt sich über 425,70 m².
Diese geräumige Wohnung besteht aus drei eleganten Schlafzimmern, drei luxuriösen Badezimmern, zwei Fluren,
Mehr lesen
Objekt ID: 1227128
Preis: € 2.030.000
Nutzfläche: 0 m2
Gesamtfläche: 0 m2
Ziimmer insgesamt: 4
Schlafzimmer: 4
Badezimmer: 3
Nutzungsart: Wohnen
Provisionspflichtig: ja
WC: 1





