Objektbeschreibung
GESCHÄFTSGELEGENHEIT – PROJEKT FÜR INVESTOREN IN RIJEKA
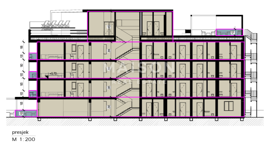
Wir präsentieren ein herausragendes Geschäftsprojekt zur Umgestaltung eines Gewerbegebäudes mit gültiger Baugenehmigung zur Umwandlung in eine moderne Unterkunftseinrichtung. Dieses Projekt bietet eine hervorragende Gelegenheit für Investoren, die eine renditestarke Immobilie in bester Lage in Rijeka suchen.
Das Projekt umfasst:
Gesamtnutzfläche: 1.164 m²
Mehr lesen
Objekt ID: 1228159
Preis: € 1.200.000
Nutzfläche: 0 m2
Gesamtfläche: 0 m2
Ziimmer insgesamt: 30
Schlafzimmer: 30
Badezimmer: 22
Nutzungsart: Gewerbe
Provisionspflichtig: ja
WC: 5





