Objektbeschreibung
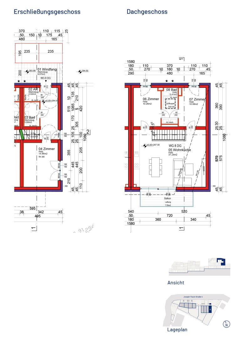
Diese moderne Dachgeschoß-Maisonette vereint hochwertiges Wohnen mit naturnaher Lage am Rande Wiens. Auf zwei Etagen bietet die ca. 92 m² große Wohnung ein durchdachtes Raumkonzept mit hochwertiger Ausstattung und herrlichem Ausblick auf den Wienerwald.
Highlights:
*
Offene Wohnküche mit DAN-Küche & Zugang zum Balkon
*
2
Mehr lesen
Objekt ID: 1237511
Preis: € 530.000
Nutzfläche: 92 m2
Gesamtfläche: 0 m2
Ziimmer insgesamt: 4
Schlafzimmer: 4
Badezimmer: 2
Betriebskosten €: 205.35
Nutzungsart: Wohnen
Provisionspflichtig: ja
Provision: 3% des Kaufpreises zzgl. 20% USt.
HWB: 32,34 kWh/(m²*a)
HWB Klasse: B
FGEE: 0.55
E-Ausweis Gültig Bis:: 20.12.2025
Energieausweis Art: Bedarf
Anzahl Balkone: 1
Balkon/Terrassen - Fläche: 7
Beziehbar: n.V.
WC: 2
Abstellräume: 1
Balkon
Einbauküche
Gäste-WC
Gas
Dusche
Fußbodenheizung
Kabel/Sat-TV
Abstellraum
Freiplatz
Massiv
Massivbauweise
Fertigparkett
Ähnliche Objekte
Dachterrassenwohnung vom Feinsten! Komfort u...
€ 340.000
4
Schlafzimmer
1
Badezimmer
99 m2
Größe
Oktober 15, 2025
Design trifft Natur: stylische Garten-Maison...
€ 648.000
4
Schlafzimmer
2
Badezimmer
105 m2
Größe
September 26, 2025





