Erweiterte Suche
Suchagent aktivieren
Exklusive Anzeigen

+ + + TECH GATE VIENNA – Bauteil GATE – Büros in der DONAU CITY + + +

,

zu Favoriten hinzufügen
teilen
Suchergebnisse

Objektbeschreibung

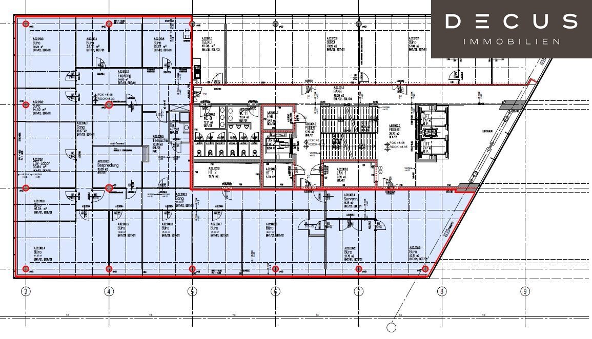
Objekt und Lage:

Das TECH GATE VIENNA ist eines der ersten Gebäude in der Donau-City und besteht aus dem Bauteil GATE und dem später errichteten Bauteil TOWER.  

 

Das GATE (Flachbau) verfügt über eine gesamte Bürofläche von ca. 15.000 m² und wurde mit 7 Geschoßen errichtet.

Die kleinste Büroeinheit ist ca.
Mehr lesen

Ort:
Bezirk:
Bundesland:
PLZ: 1220
Land: Österreich
Objekt ID: 1237995
Nutzfläche: 0 m2
Gesamtfläche: 552 m2
Ziimmer insgesamt: 0
Schlafzimmer: 0
Badezimmer: 0
Miete/m2 €: 14.5
Miete (netto) €: 8009.66
Betriebskosten €: 2872.43
Nutzungsart: Gewerbe
Provisionspflichtig: ja
HWB: 60 kWh/(m²*a)
FGEE: 1
Energieausweis Art: Bedarf
Etage: 2. Etage
barrierefrei
Neubau

Ähnliche Objekte

vergleichen
Büro

Nettes Büro – Toplage/U1,U3

1
Schlafzimmer
1
Badezimmer
April 16, 2026

DECUS Immobilien GmbH
Anita Kronaus-Buchegger

Kontaktaufnahme









    • Preisinformation
      Miete netto8.009,66 €
      Betriebskosten2.872,43 €

    Vergleichen