Objektbeschreibung
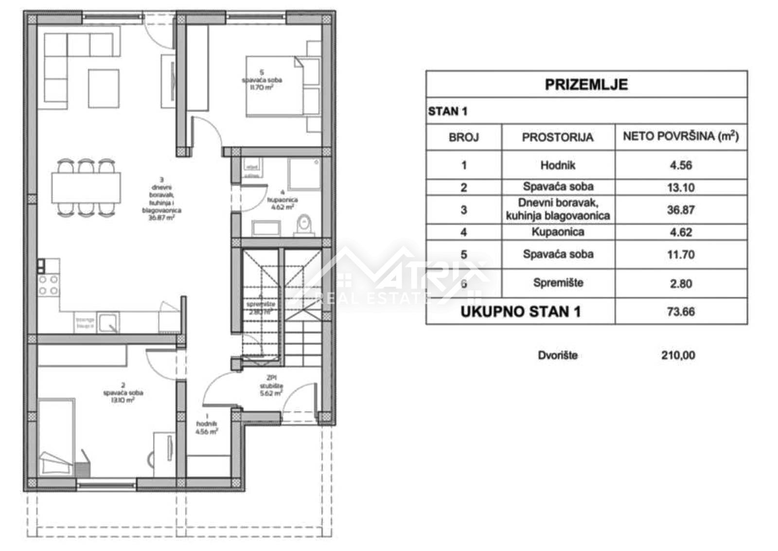
In einem ruhigen Vorort von Osijek entsteht ein modernes Wohngebäude, dessen 73,66 m² große 3-Zimmer-Wohnung höchste Bauqualität und Wohnkomfort vereint. Der fast 37 m² große, offene Wohn-, Ess- und Küchenbereich bietet viel Platz für das Familienleben, während der 210 m² große Privatgarten – direkt aus der Wohnung erreichbar – zu
Mehr lesen
Objekt ID: 1278451
Preis: € 166.000
Nutzfläche: 0 m2
Gesamtfläche: 0 m2
Ziimmer insgesamt: 3
Schlafzimmer: 3
Badezimmer: 1
Nutzungsart: Wohnen
Provisionspflichtig: ja
WC: 1









