Objektbeschreibung
PROVISIONSFREI: Moderne 2-Zimmer-Wohnung mit Eigengarten, Loggia & Terrasse in Steyr-Christkindl – Wohnbauförderung möglich
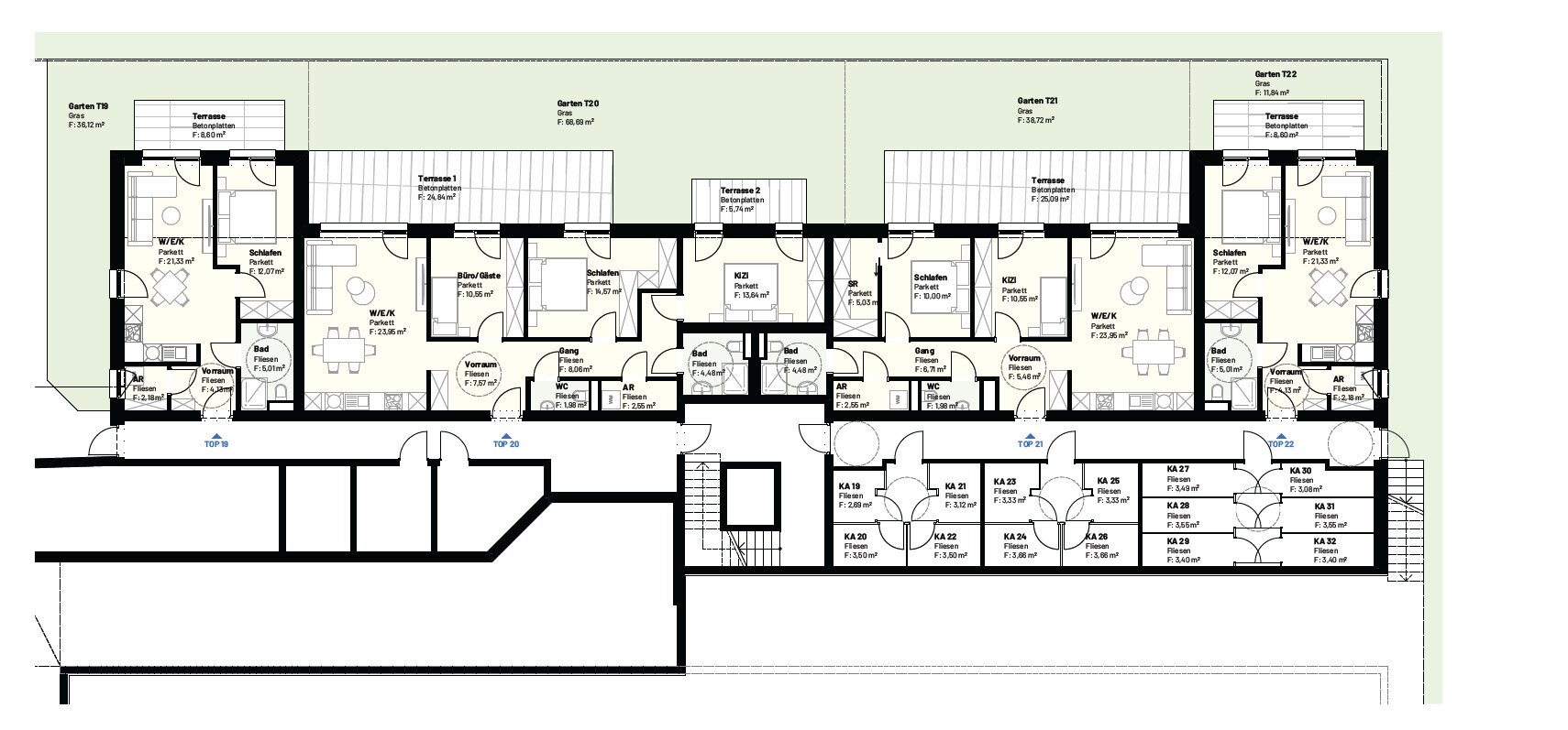
Inmitten der idyllischen Landschaft von Steyr-Christkindl entsteht das exklusive Neubauprojekt Panorama Wohnen, das modernen Wohnkomfort mit ruhiger Lage vereint. Die insgesamt 32 hochwertigen Eigentumswohnungen beeindrucken mit durchdachten Grundrissen, großzügigen Terrassen, Balkonen oder Eigengärten sowie einer hochwertigen Ausstattung, die
Mehr lesen
Objekt ID: 1281648
Preis: € 214.674
Nutzfläche: 45 m2
Gesamtfläche: 0 m2
Ziimmer insgesamt: 2
Schlafzimmer: 2
Badezimmer: 1
Betriebskosten €: 115
Nutzungsart: Anlage
Provisionspflichtig: nein
Provision: Provision bezahlt der Abgeber.
HWB: 41,80 kWh/(m²*a)
HWB Klasse: B
FGEE: 0.67
E-Ausweis Gültig Bis:: 08.06.2031
Energieausweis Art: Bedarf
Balkon/Terrassen - Fläche: 8
Etage: 1. KG
WC: 1
Abstellräume: 1
Personenaufzug
Parkett
Badewanne
Fußbodenheizung
Abstellraum
Rollläden
Garage
Luft-Wärmepumpe
Gartennutzung
Ähnliche Objekte
PROVISIONSFREI: Neubau-Erstbezug in Steyr: 3...
€ 349.000
3
Schlafzimmer
1
Badezimmer
77 m2
Größe
April 21, 2026
Exklusive 6-Zimmer-Maisonette mit Garten &am...
€ 523.413
6
Schlafzimmer
2
Badezimmer
107 m2
Größe
April 16, 2026


















