Objektbeschreibung
_Willkommen zu Ihrem neuen Zuhause in der pulsierenden 1200 Wien!_
360° Rundgang _ Links: [https://kuula.co/share/collection/7cn0V?logo=1&card=1&info=1&logosize=200&fs=1&vr=1&zoom=1&gyro=0&initload=0&thumbs=1&inst=de]
Diese wunderschöne Etagenwohnung in der 2. Etage bietet Ihnen nicht nur ein komfortables Wohnerlebnis, sondern auch eine erstklassige Lage, die alle Annehmlichkeiten des urbanen Lebens in greifbare Nähe rückt.
Mit einer großzügigen Fläche von
Mehr lesen
Dokumente
Objekt ID: 1288984
Preis: € 358.000
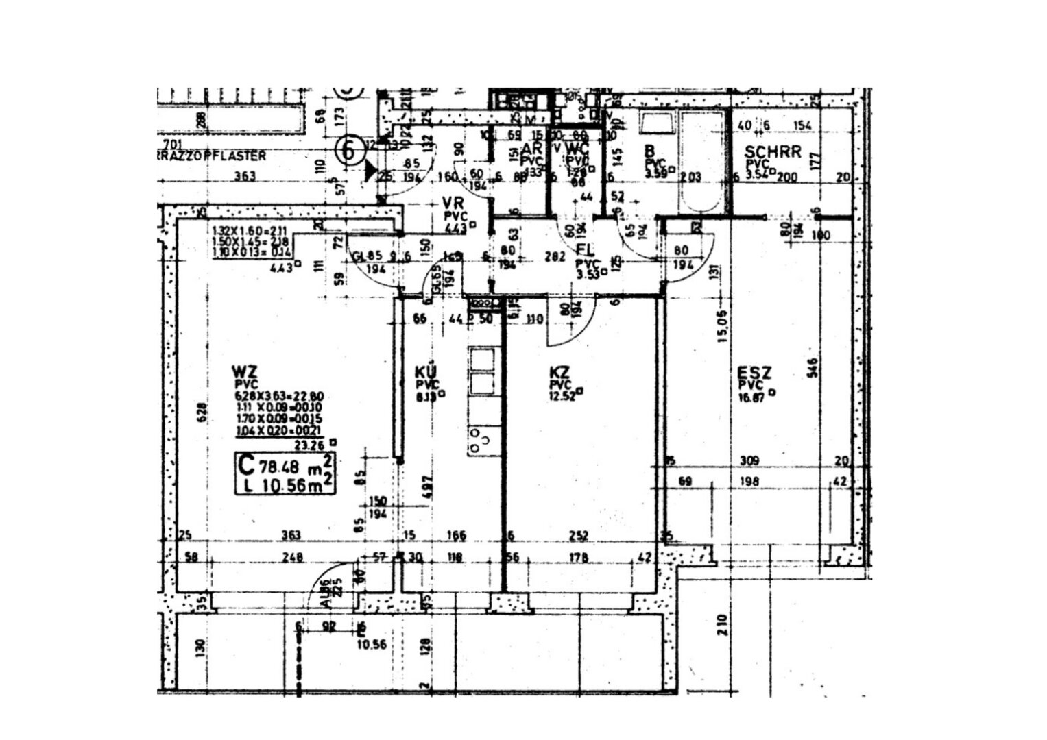
Nutzfläche: 89 m2
Gesamtfläche: 89 m2
Ziimmer insgesamt: 3
Schlafzimmer: 3
Badezimmer: 1
Miete/m2 €: 4022.47
Nutzungsart: Wohnen
Provisionspflichtig: ja
Provision: 3% des Kaufpreises zzgl. 20% USt.
HWB: 84 kWh/(m²*a)
HWB Klasse: C
FGEE: 2.1
E-Ausweis Gültig Bis:: 07.06.2030
Energieausweis Art: Bedarf
Balkon/Terrassen - Fläche: 10
Beziehbar: nach Vereinbarung
Etage: 2. Etage
WC: 1
Abstellräume: 1
vollmöbliert
barrierefrei
Neubau
Einbauküche
Personenaufzug
Gäste-WC
Gas
Badewanne
Fahrradraum
Zentralheizung
Abstellraum
Klimaanlage
Granit
Massiv
Massivbauweise
Wasch-/Trockenraum
Gartennutzung
DVBT-Empfang
Rampe
Kabelkanäle
Ähnliche Objekte
Helle 2-Zimmer Wohnung in ruhiger Lage nahe ...
€ 219.000
2
Schlafzimmer
1
Badezimmer
53 m2
Größe
Oktober 27, 2025
Sanierungshit Nähe Bahnhof Meidling *** 2-3 ...
€ 199.000
3
Schlafzimmer
1
Badezimmer
70 m2
Größe
Oktober 26, 2025






