Objektbeschreibung
Dieses charmante, sehr gepflegte Jahrhundertwendehaus liegt in der idyllischen Wienerwaldgemeinde Wolfsgraben – umgeben von Wäldern und Natur, ideal für Erholung, Sport und Spaziergänge. Trotz der ruhigen Lage ist die Anbindung ausgezeichnet: In rund 20 Minuten erreicht man die Wiener Stadtgrenze, die A1 und die B13 ermöglichen schnelle Verbindungen nach Wien,
Mehr lesen
Objekt ID: 1301448
Preis: € 490.000
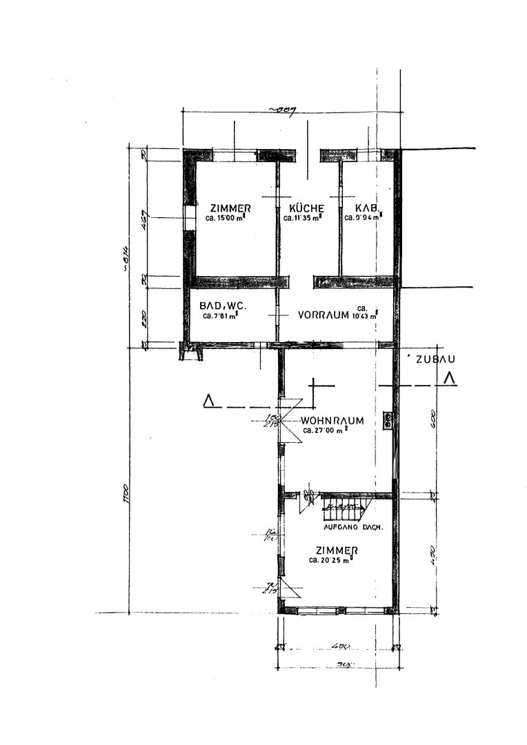
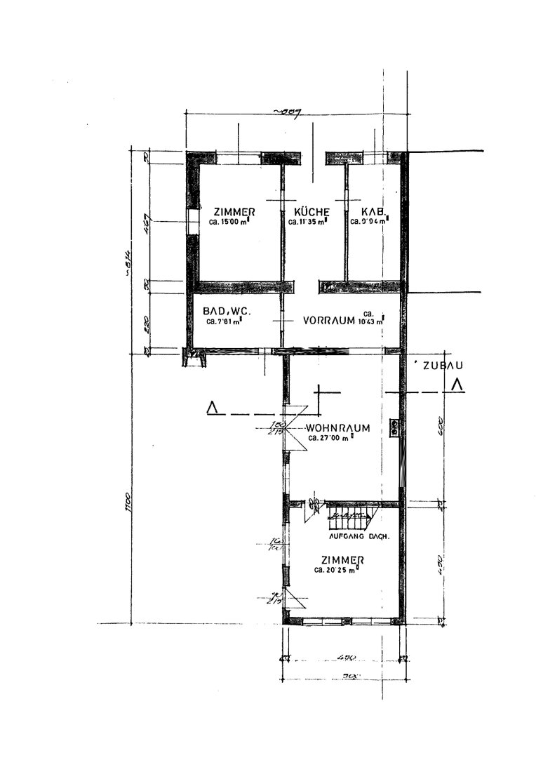
Nutzfläche: 101 m2
Gesamtfläche: 947 m2
Ziimmer insgesamt: 3
Schlafzimmer: 3
Badezimmer: 1
Nutzungsart: Wohnen
Provisionspflichtig: ja
Provision: 3% des Kaufpreises zzgl. 20% USt.
HWB: 311,90 kWh/(m²*a)
HWB Klasse: G
FGEE: 3.07
E-Ausweis Gültig Bis:: 16.08.2032
Energieausweis Art: Bedarf
Beziehbar: n.V.
Etage: Erdgeschoß + Dachboden
Einbauküche
Etagenheizung
Gas
Bad mit Fenster
Massiv
Massivbauweise
Dielen
Satteldach
Pultdach
Ähnliche Objekte
Gepflegtes Holzhaus auf ebenem Grundstück in...
€ 290.000
3
Schlafzimmer
1
Badezimmer
53 m2
Größe
Oktober 13, 2025
Perfekter Familienhit! Moderner Bungalow mit...
€ 1.590.000
6
Schlafzimmer
2
Badezimmer
184 m2
Größe
September 20, 2025





