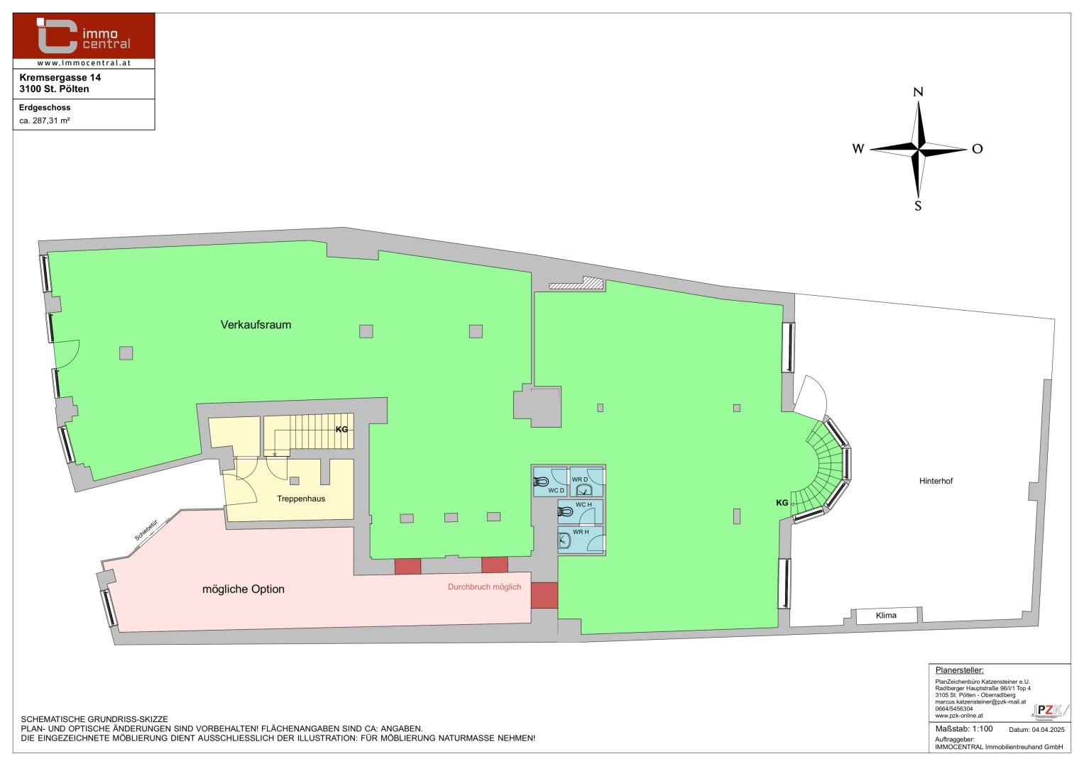
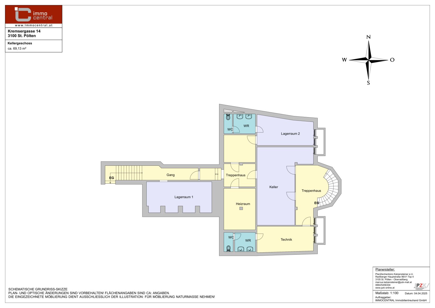
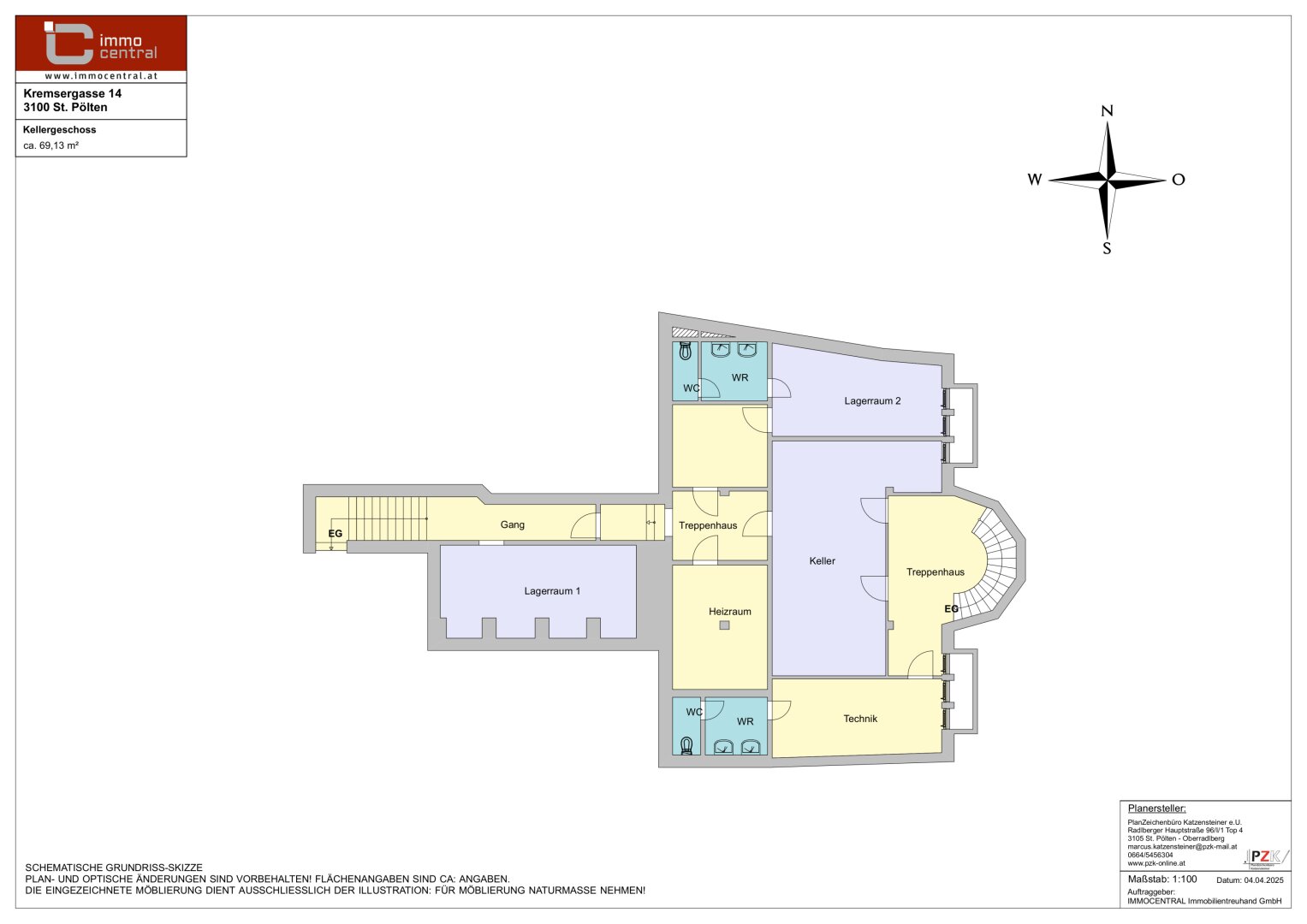
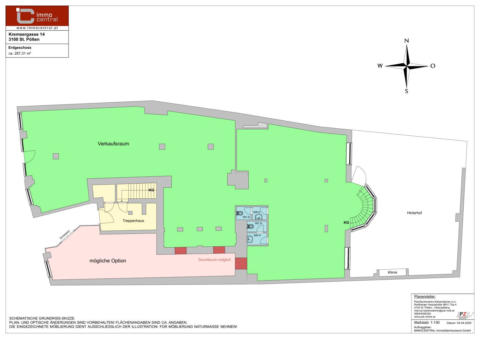
Objektbeschreibung
Standortbeschreibung / Wirtschaftliches Umfeld: Die Immobilie befindet sich in zentraler Lage in der Kremser Gasse, nur zwei Gehminuten vom Hauptbahnhof entfernt. In direkter Umgebung sind angesagte Marken, erstklassige Gastronomiebetriebe sowie zahlreiche Dienstleister wie Juristen, Ärzte, Apotheken und Therapeuten ansässig. Das markante Gebäude besticht durch seine prominente Präsenz im Straßenbild und
Mehr lesen
Adresse: Kremser Gasse
Ort: St. Pölten
Bezirk: 3100
Bundesland: Niederösterreich
PLZ: 3100
Land: Österreich
Objekt ID: 130552
Nutzfläche: 0 m2
Gesamtfläche: 356 m2
Ziimmer insgesamt: 0
Schlafzimmer: 0
Badezimmer: 0
Nutzungsart: Gewerbe
HWB: 68,59 kWh/(m²*a)
HWB Klasse: C
FGEE: 1.75
E-Ausweis Gültig Bis:: 16.11.2022
Energieausweis Art: Bedarf
Beziehbar: sofort
Max. Mietdauer: unbefristet
WC: 3
barrierefrei
Altbau
Kabel/Sat-TV
Abstellraum
rollstuhlgerecht
Klimaanlage
Massiv
Massivbauweise
Fernheizung
Gartennutzung
seniorengerecht
Gastterrasse
Pissoir
Räume veränderbar
Teeküche
DVBT-Empfang
Warmwasser-Elektroheizung







