Objektbeschreibung
LUXUSWOHNUNG MIT DACHGARTEN, TERRASSE UND TRAUMBLICK
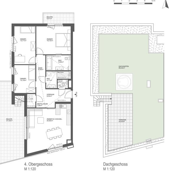
In einem modernen Neubau im 21. Wiener Gemeindebezirk erwartet Sie eine exklusive Eigentumswohnung, die durch Großzügigkeit, Lichtfülle und außergewöhnliche Freiflächen besticht. Auf rund 100 m² Wohnfläche kombiniert dieses Objekt zeitgemäßen Wohnkomfort mit hochwertiger Ausstattung und einer energieeffizienten Bauweise.
Das durchdachte Raumkonzept verteilt sich auf
Mehr lesen
Objekt ID: 1306662
Preis: € 959.000
Nutzfläche: 100 m2
Gesamtfläche: 0 m2
Ziimmer insgesamt: 4
Schlafzimmer: 4
Badezimmer: 2
Nutzungsart: Wohnen
HWB: 29 kWh/(m²*a)
HWB Klasse: B
FGEE: 0.74
E-Ausweis Gültig Bis:: 12.11.2030
Energieausweis Art: Bedarf
Anzahl Balkone: 2
Balkon/Terrassen - Fläche: 53
Etage: 4. Etage
Balkon
Neubau
Einbauküche
Personenaufzug
Parkett
Fußbodenheizung
Garage
Erdwärme
Ähnliche Objekte
Pötzleinsdorfer Schloßpark I Neubauprojekt I...
€ 782.000
3
Schlafzimmer
2
Badezimmer
89 m2
Größe
Dezember 13, 2025
Stilvolle Altbau-Erstwohnung in ruhiger Seit...
€ 675.000
2
Schlafzimmer
1
Badezimmer
77 m2
Größe
Dezember 13, 2025






