Objektbeschreibung
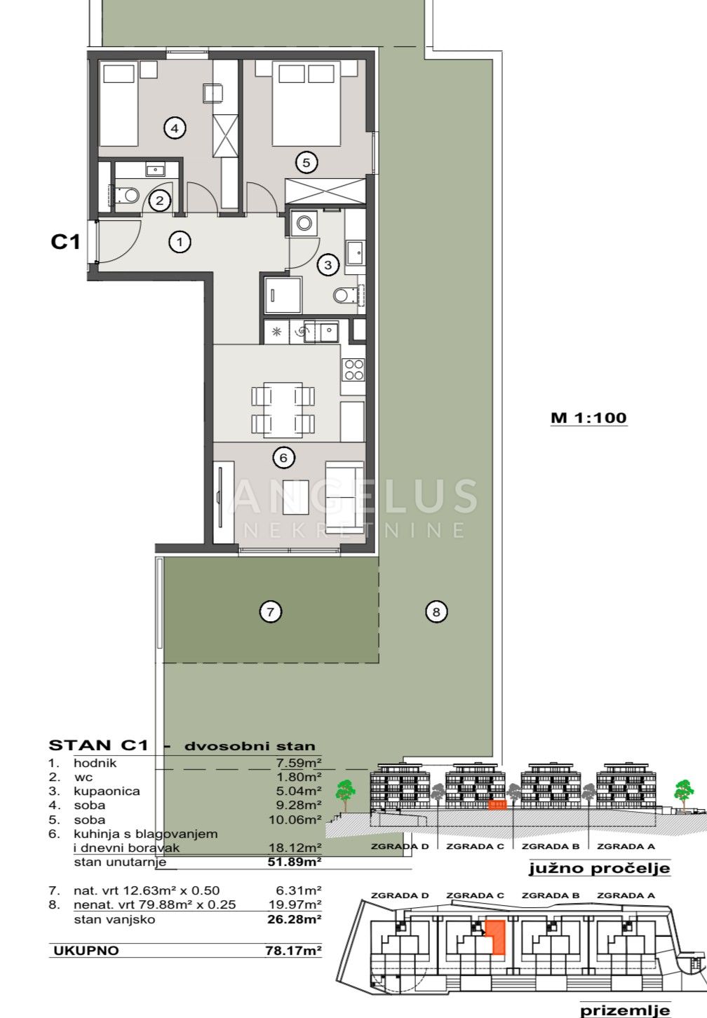
Die Immobilienagentur Angelus Real Estate bietet Ihnen eine Zwei-Zimmer-Wohnung von 78,17 m2 in einem NEUBAU in Split – Pazdigrad zum Verkauf an
STANDORT
Die Wohnung befindet sich in einem der ruhigsten Stadtviertel, in einer sehr attraktiven Lage, im südöstlichen Teil von Split und verfügt über eine hervorragende Anbindung an
Mehr lesen
Objekt ID: 1327036
Preis: € 406.484
Nutzfläche: 0 m2
Gesamtfläche: 0 m2
Ziimmer insgesamt: 3
Schlafzimmer: 3
Badezimmer: 1
Nutzungsart: Wohnen
Provisionspflichtig: ja
WC: 1





