Erweiterte Suche
Suchagent aktivieren
Exklusive Anzeigen

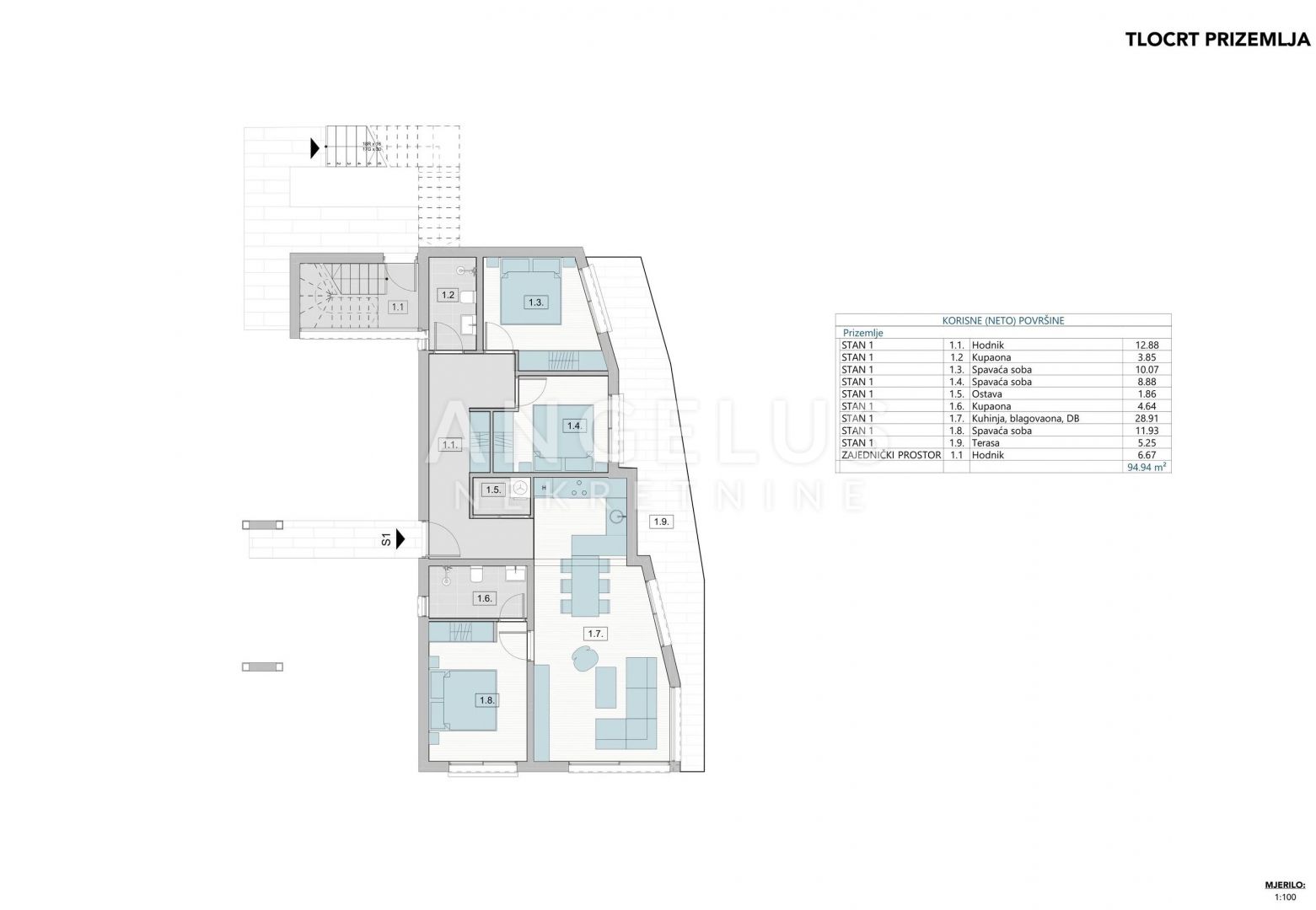
Wohnung Krk, 94,94m2

€ 960.000,00

,

4 Zimmer
zu Favoriten hinzufügen
teilen
Suchergebnisse

Objektbeschreibung

Angelus Nekretnine d.o.o. bieten Ihnen zum Verkauf eine luxuriös eingerichtete Wohnung im Zentrum der Stadt Krk mit Panoramablick auf das Meer in Richtung Südosten an.

LAGE: Die Stadt Krk ist eine der ältesten städtischen Siedlungen in Kroatien und liegt im südwestlichen Teil der Insel Krk, in einer weitläufigen Bucht am
Mehr lesen

Ort:
Bezirk:
PLZ: 51500
Land: Croatia
Objekt ID: 1329795
Preis: € 960.000
Nutzfläche: 0 m2
Gesamtfläche: 0 m2
Ziimmer insgesamt: 4
Schlafzimmer: 4
Badezimmer: 2
Nutzungsart: Wohnen
Provisionspflichtig: ja

Ähnliche Objekte

vergleichen
1728990722 penthouse pogled bazen

Wohnung Krk, 134,91m2

€ 1.220.000
4
Schlafzimmer
3
Badezimmer
März 14, 2026
vergleichen
1763413588 866676589 384291 0

Wohnung im Erdgeschoss einer Villa im Bau, S...

€ 730.000
4
Schlafzimmer
2
Badezimmer
März 14, 2026
vergleichen
1763743508 1219313571 384292 0

Luxuriöse Wohnung, Neubau, Stadt Krk

€ 730.000
4
Schlafzimmer
2
Badezimmer
März 14, 2026

Vergleichen