Objektbeschreibung
LAGE: Volme ist ein Elite-Touristendorf im südlichen Teil der Halbinsel Istrien, etwa 7 km südlich von Pula, in der Gemeinde Medulin. Banjole liegt in der Nähe von Volmo und Premantura, ein paar Kilometer weiter, mit der geschützten Landschaft des Naturparks Kap Kamenjak, der kilometerlange Strände aller Art bietet. Der Vorteil
Mehr lesen
Objekt ID: 1330770
Preis: € 1.200.000
Nutzfläche: 0 m2
Gesamtfläche: 0 m2
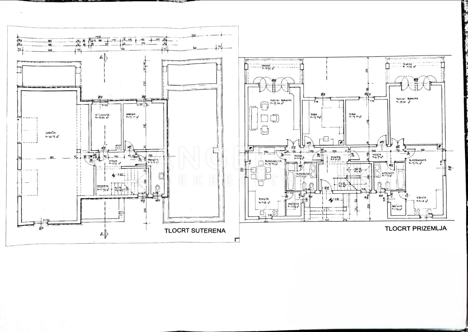
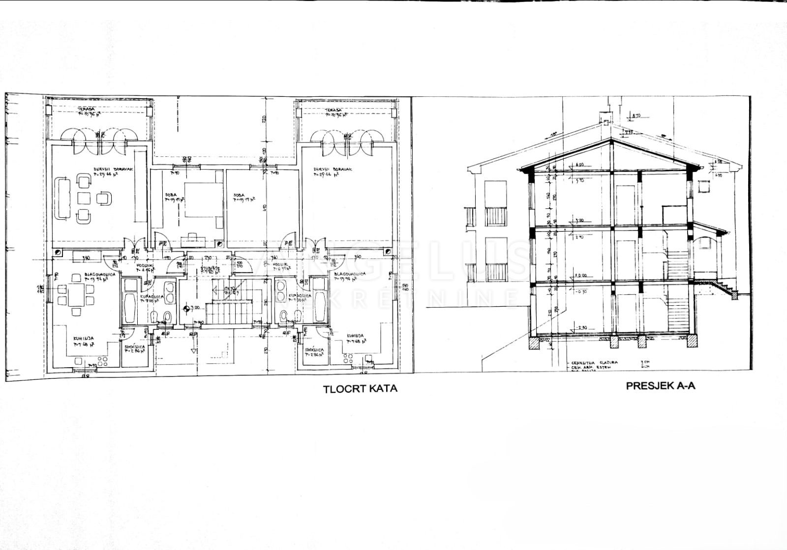
Ziimmer insgesamt: 15
Schlafzimmer: 15
Badezimmer: 5
Nutzungsart: Wohnen
Provisionspflichtig: ja







































