Objektbeschreibung
Angelus nekretnine bietet WOHNUNGEN ZUM VERKAUF – NEU GEBAUT*** in attraktiver Lage, 300 m vom Meer entfernt.
STANDORT:
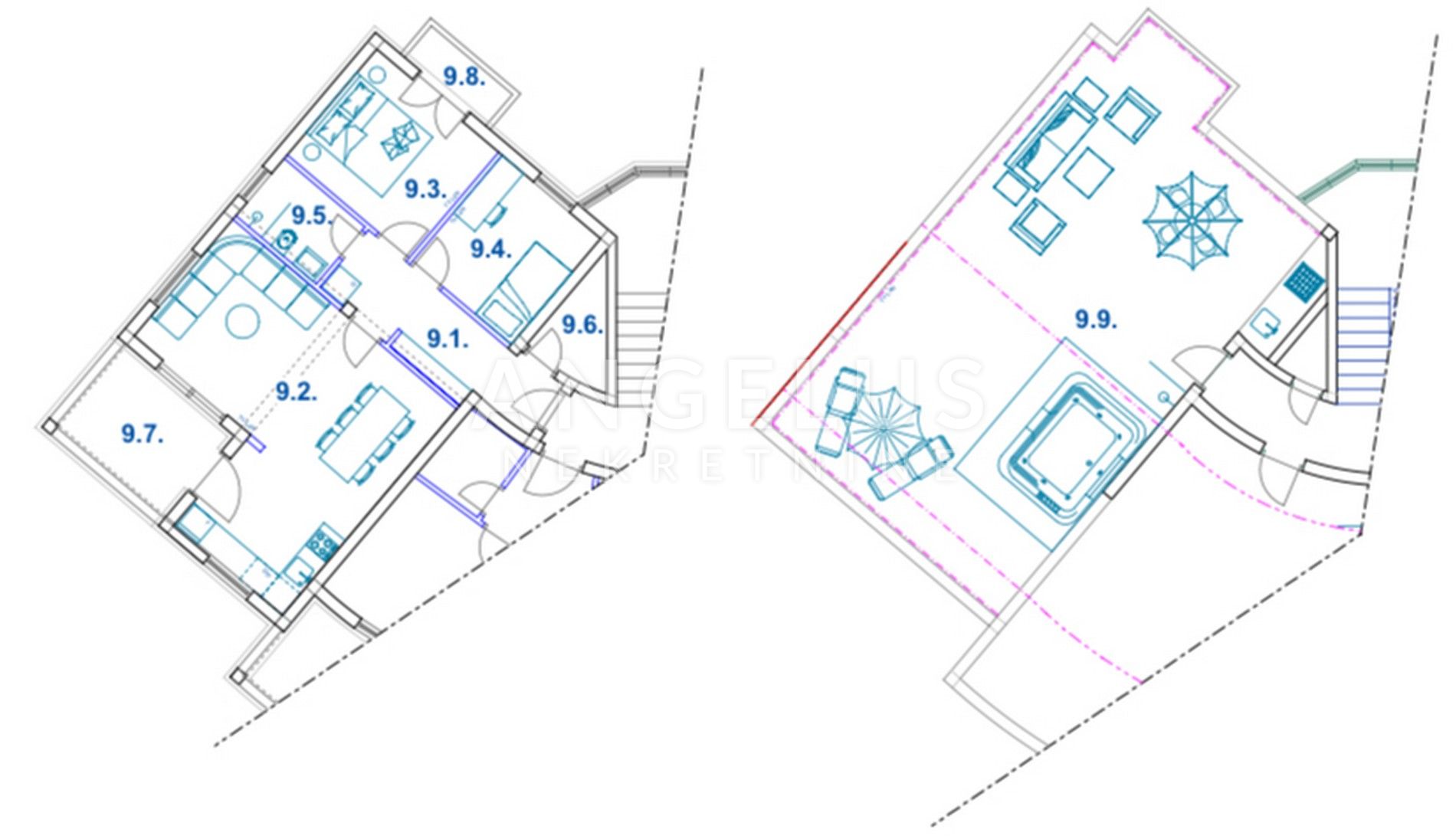
Zum Verkauf steht eine modern ausgestattete Wohnung in einem Neubau in einzigartiger Lage in der Küstenstadt Žaborić, nur 10 km von der Stadt Šibenik entfernt. Der Ort verfügt über eine hervorragende
Mehr lesen
Objekt ID: 1334085
Preis: € 350.000
Nutzfläche: 0 m2
Gesamtfläche: 0 m2
Ziimmer insgesamt: 3
Schlafzimmer: 3
Badezimmer: 1
Nutzungsart: Wohnen
Provisionspflichtig: ja










